Ruime woning met 5 slaapkamers en veel potentieel in hartje Nieuwpoort
Recollettenstraat 22, 8620 Nieuwpoort
Ref. 7112676
Beschrijving
Welkom in deze karaktervolle woning in het bruisende centrum van Nieuwpoort, waar ruimte, locatie en mogelijkheden samenkomen. Met 5 volwaardige slaapkamers, een sterk EPC-label (C) en een volledig onderkelderde structuur, is dit het perfecte canvas voor wie op zoek is naar een woning met inhoud én toekomstwaarde.
Of u nu droomt van een comfortabele gezinswoning, een tweede verblijf aan zee of een investeringsproject: deze eigendom biedt het allemaal.
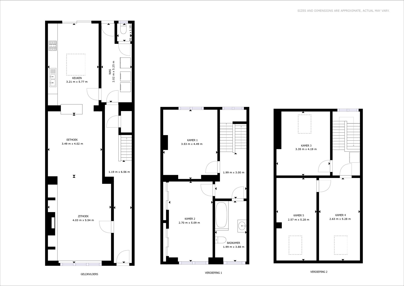
Indeling
Gelijkvloers:
Statige inkomhal, royale leefruimte met veel lichtinval en een aparte keuken – klaar voor een eigentijdse make-over.
1e verdieping:
Nachthal, twee zeer ruime slaapkamers, badkamer.
2e verdieping:
Drie extra slaapkamers, ideaal voor kinderen, thuiswerk of creatieve invulling.
Kelder:
Volledig onderkelderd – handig voor opslag, wijnkelder, hobbyruimte of zelfs een kleine werkplaats.
Technisch & praktisch
Verwarming op gas
Dubbele beglazing
EPC label C – geen renovatieverplichting
Stadscentrum: winkels, horeca, openbaar vervoer en het strand op wandelafstand
Wacht niet op een tweede kans – woningen met dit volume, deze ligging én dit potentieel zijn zeldzaam.
Kenmerken
5 slaapkamer(s)
1 Badkamer(s)
2 Toilet(ten)
Tuin
Terras
Riolering
Gas
Telefoonbekabeling
Kelder
Electriciteit
Dubbele beglazing
Algemene Informatie
- Totale oppervlakte
- 160 m²
- Bewoonbare opp.
- 186 m²
- Bouwjaar
- 1945
- Renovatiejaar
- 2010
- Slaapkamer 1
- 16 m²
- Slaapkamer 2
- 13 m²
- Slaapkamer 3
- 14 m²
- Slaapkamer 4
- 13.88 m²
- Slaapkamer 5
- 13.88 m²
- Terras 1
- 12 m²
- Woonkamer
- 22 m²
- Eetkamer
- 14 m²
- Keuken
- 18 m²
- Tuin
- 20 m²
Energieprestaties
- EPC categorie

- EPC
- 215 kWh/m²
- EPC referentie
- 20240618-0003285721-RES-2
Stedenbouwkundige Informatie
- Overstromingsgevoelig
- Nee
- Elektriciteitskeuring beschikbaar
- Ja, niet conform
- Bouwvergunning
- Ja
- Voorkooprecht
- Nee
- Verkavelingsvergunning
- Nee
- Bodemattest
- Ja
- Asbestattest
- Ja, 19/06/2024
- G-score
- A
- P-score
- A


















