Alleenstaande gezinswoning met tuin en potentieel in Torhout
Berg op Zoomstraat 6, 8820 Torhout
Ref. 7277086
Beschrijving
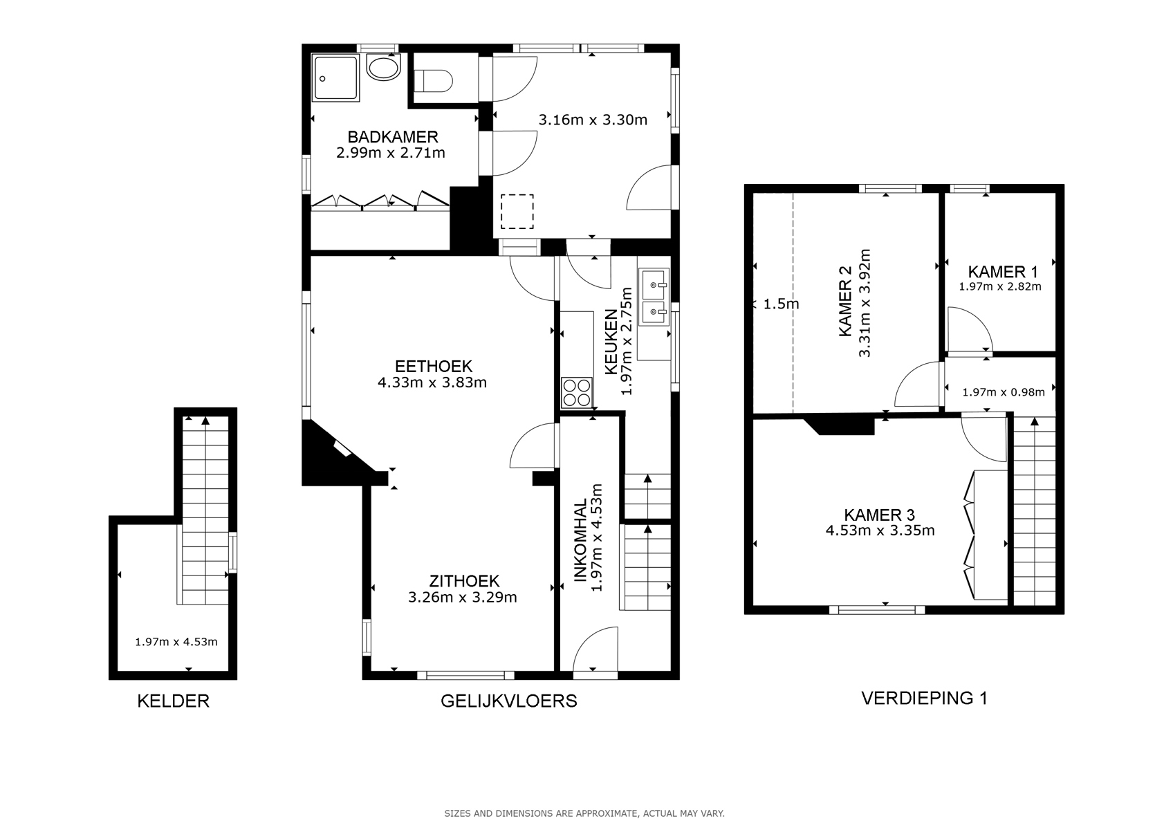
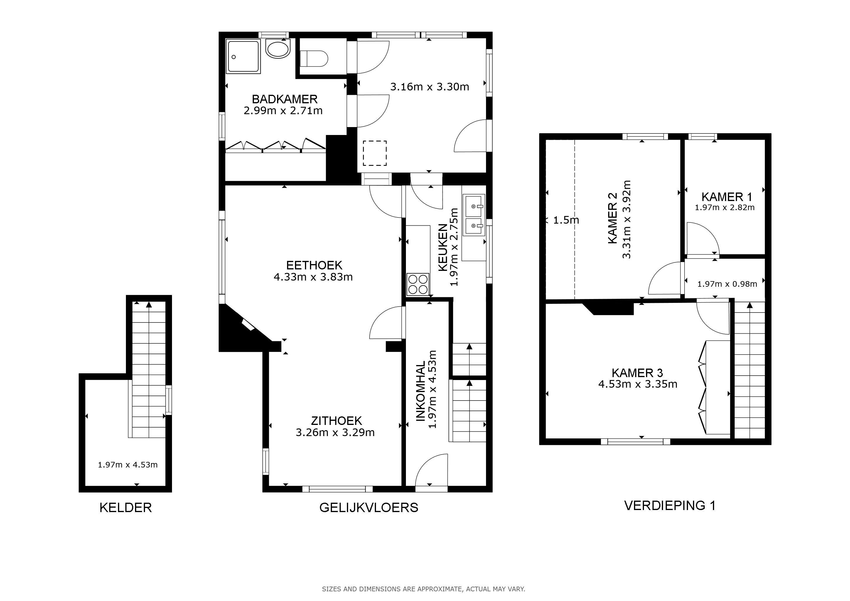
Een betaalbare alleenstaande woning waar ruimte, licht en een grote zuidwestgerichte tuin samenkomen. Op het gelijkvloers geniet je van een lichtrijke woonkamer met eetplaats, een aparte keuken, een tweede leefruimte, een badkamer en een afzonderlijk toilet. Boven zijn er drie volwaardige slaapkamers en een ruime zolder die extra mogelijkheden biedt.
De garage met aansluitende bergingen en een oprit voor drie wagens zorgen voor het nodige comfort. Dankzij de aanwezige rolluiken, dubbel glas en een recente verwarmingsketel op aardgas beschik je al over een goede basis.
Deze woning vraagt om een renovatie, maar geeft je tegelijk de vrijheid om volledig je eigen woonstijl te creëren. Met de grote zonnige tuin als extra troef wordt dit een plek waar je elke dag thuiskomt in alle rust en ruimte.
Zie jij hier de ideale gezinswoning met tuin ontstaan, volledig volgens jouw smaak en wensen?
Alleenstaande woning met ruime zuidwestgerichte tuin.
3 slaapkamers + extra zolderruimte.
Lichtrijke woonkamer en tweede leefruimte.
Garage met bergingen + oprit voor 3 wagens.
Dubbel glas, rolluiken en nieuwe aardgasketel als solide basis.
Kenmerken
3 slaapkamer(s)
1 Badkamer(s)
1 Toilet(ten)
Tuin
Parkeren
Terras
Riolering
Gas
Telefoonbekabeling
Electriciteit
Dubbele beglazing
Algemene Informatie
- Totale oppervlakte
- 401 m²
- Bewoonbare opp.
- 122 m²
- Bouwjaar
- 1955
- Kadastraal inkomen
- € 342
- Renovatieverplichting
- Ja
- Slaapkamer 1
- 6 m²
- Slaapkamer 2
- 13 m²
- Slaapkamer 3
- 15 m²
- Terras 1
- 20 m²
- Woonkamer
- 28 m²
- Keuken
- 5 m²
- Tuin
- 401 m²
Energieprestaties
- EPC categorie

- EPC
- 493 kWh/m²
- EPC referentie
- 20250930-0003698416-RES-1
Stedenbouwkundige Informatie
- Overstromingsgevoelig
- Nee
- Elektriciteitskeuring beschikbaar
- Ja, niet conform
- Bouwvergunning
- Ja
- Voorkooprecht
- Nee
- Verkavelingsvergunning
- Nee
- Bodemattest
- Ja
- Asbestattest
- Ja, 02/10/2025
- G-score
- A
- P-score
- A
Download documenten
Ligging
Deze woning bevindt zich in de Berg op Zoomstraat te Torhout, een rustige en residentiële omgeving met vlotte bereikbaarheid. Op korte afstand vind je zowel winkels, scholen als sport- en ontspanningsmogelijkheden. Dankzij de nabijheid van de E403 en het station van Torhout heb je bovendien een uitstekende verbinding richting Brugge, Roeselare en de kust. Zo geniet je hier van het beste van twee werelden: wonen in een rustige buurt met toch alle voorzieningen en mobiliteit binnen handbereik.























