Opbrengstpand - 9 vergunde studentenkamers op Toplocatie
Sint-Rochuslaan 41, 8500 Kortrijk
Ref. 7142679
Beschrijving
Investeer zorgeloos in een prachtig gerenoveerd en volledig vergund studentenpand met een bewezen rendement in een rustige studentenbuurt!
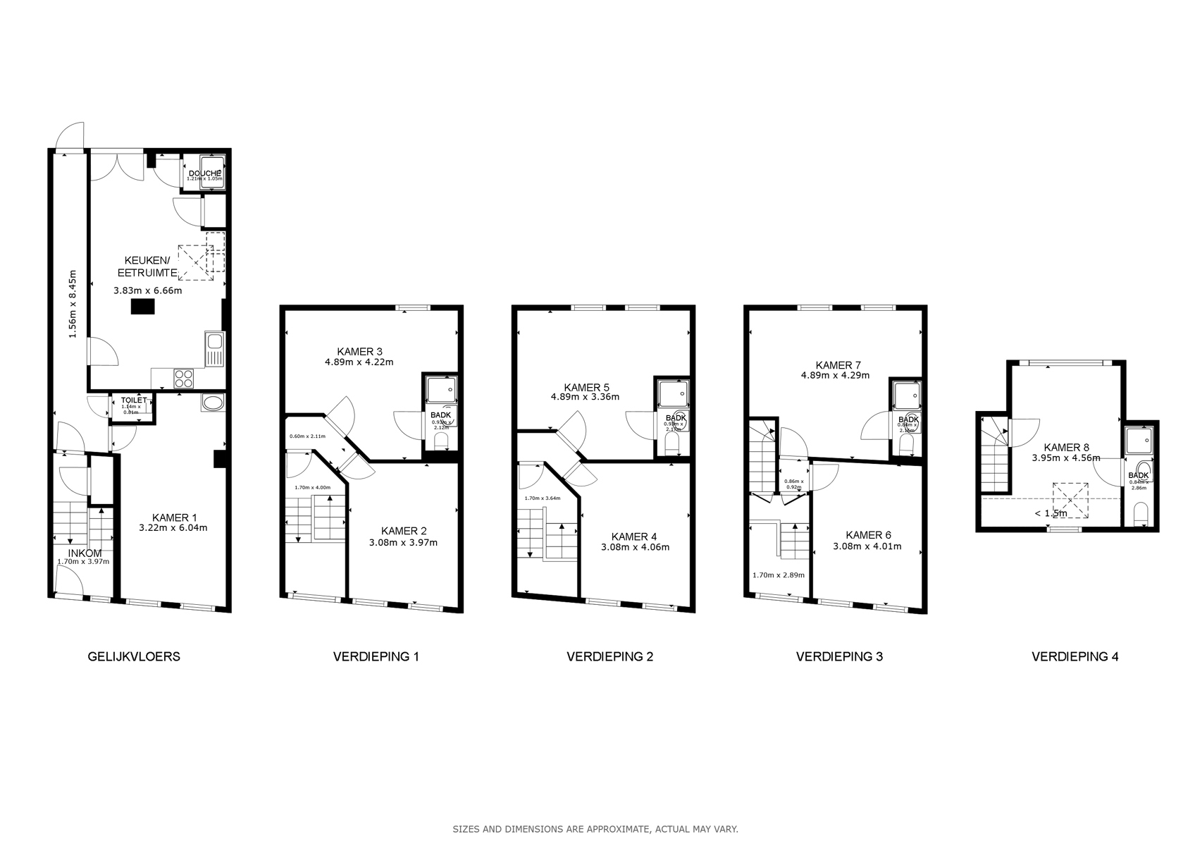
Deze ruime studentenwoning telt 9 vergunde kamers, waarvan 5 met eigen badkamer, en bevindt zich op een absolute topligging in Kortrijk, vlak bij de drie belangrijkste onderwijsinstellingen:
Ligging op wandelafstand van:
Howest Hogeschool (The level, Brug, Weide, Noord)
VIVES Hogeschool
KU Leuven Campus Kortrijk (Kulak)
Station Kortrijk en het stadscentrum
Rendement & zekerheid:
Alle huurcontracten voor academiejaar 2025-2026 zijn reeds ondertekend
De opbrengst bedraagt 3.745€/maand, 44.940€/jaar (excl.verbruik) - jaarlijkse indexering
Netto huuropbrengst van 4,6 %
Onmiddellijk rendement vanaf aankoop
Indeling & Comfort:
9 mooi gemeubelde studentenkamers, allemaal met parketvloer
5 kamers beschikken over een private badkamer
Volledig ingerichte gemeenschappelijke keuken
Aangename stadstuin waar studenten kunnen ontspannen
Staat van het pand:
Met zorg gerenoveerd
Zeer netjes onderhouden
Volledig conform alle wet- en regelgeving
EPC = B = 169 kWh/(m2 jaar)
Asbest veilig
Dit is een uitstekende opportuniteit voor investeerders die op zoek zijn naar een stabiel, onmiddellijk renderend en zorgenvrij opbrengsteigendom in een stad met een blijvend maar vooral sterk groeiende studentenmarkt.
Interesse? Neem contact op voor meer info of een plaatsbezoek!
Ellen : 0475.400.770 - ellen@altro-vastgoed.be
Prachtig gerenoveerd en volledig vergund studentenpand
9 vergunde kamers, waarvan 5 met eigen badkamer
Vlakbij de drie belangrijkste onderwijsinstellingen
Netto huuropbrengst van 4,6 %
Kenmerken
9 slaapkamer(s)
6 Badkamer(s)
6 Toilet(ten)
Tuin
Terras
Riolering
Gas
Parlofoon
Electriciteit
Dubbele beglazing
Algemene Informatie
- Totale oppervlakte
- 345 m²
- Bewoonbare opp.
- 218 m²
- Bouwjaar
- 1900
- Slaapkamer 1
- 19.4 m²
- Slaapkamer 2
- 20.6 m²
- Slaapkamer 3
- 12.2 m²
- Slaapkamer 4
- 16.4 m²
- Slaapkamer 5
- 20.9 m²
- Keuken
- 25.5 m²
- Tuin
- 203 m²
Energieprestaties
- EPC categorie

- EPC
- 169 kWh/m²
- EPC referentie
- 20250603-0003600893-RES-1
Stedenbouwkundige Informatie
- Overstromingsgevoelig
- Nee
- Elektriciteitskeuring beschikbaar
- Ja, conform
- Bouwvergunning
- Ja
- Voorkooprecht
- Nee
- Bodemattest
- Ja
- Asbestattest
- Ja, 03/06/2025
- G-score
- B
- P-score
- B
Exterieur
Aangename stadstuin waar studenten kunnen ontspannen
Interieur
9 mooi gemeubelde studentenkamers, allemaal met parketvloer 5 kamers beschikken over een private badkamer Volledig ingerichte gemeenschappelijke keuken
Energie
Met zorg gerenoveerd en Zeer netjes onderhouden Volledig conform alle wet- en regelgeving EPC = B = 169 kWh/(m2 jaar) Asbest veilig
Ligging
het pand bevindt zich op een absolute topligging in Kortrijk, vlak bij de drie belangrijkste onderwijsinstellingen: Ligging op wandelafstand van: Howest Hogeschool (The level, Brug, Weide, Noord) VIVES Hogeschool KU Leuven Campus Kortrijk (Kulak) Station Kortrijk en het stadscentrum



















