Investering of starterswoning met renovatiepotentieel
Klapeksterstraat 12, 9000 Gent
Ref. 7183531
Beschrijving
Bent u op zoek naar een woning die u volledig naar eigen smaak kan renoveren en inrichten?
Deze ruime rijwoning vormt de perfecte basis voor een geslaagd renovatieproject.
Met wat vernieuwing en afwerking tovert u dit huis om tot een warme en gezellige thuis of een interessante investering.
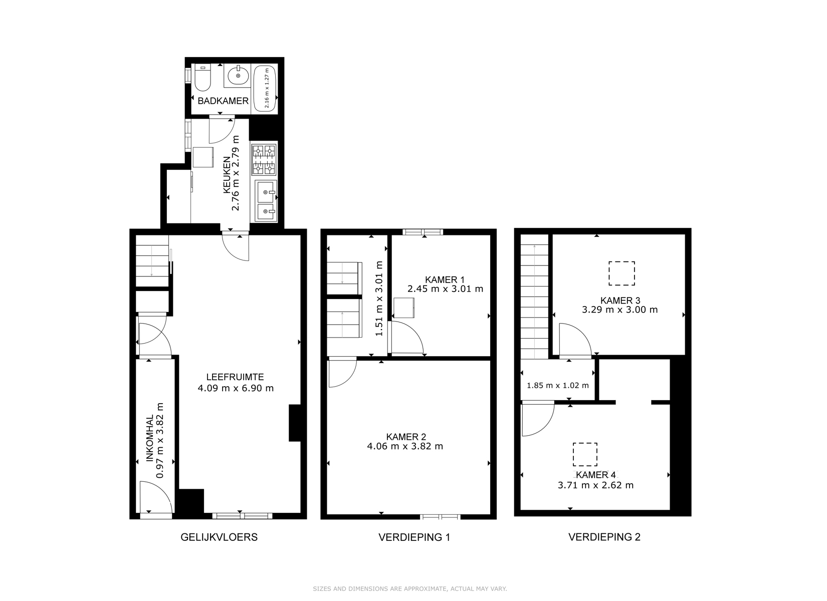
Indeling
Gelijkvloers: inkomhal, lichtrijke leefruimte met directe toegang tot de te renoveren keuken en badkamer. Achteraan een klein, knus koertje – ideaal voor een koffiemomentje in de ochtend.
Eerste verdieping: twee volwaardige slaapkamers.
Tweede verdieping: nog eens twee slaapkamers, perfect voor extra gezinsruimte, bureau of hobbyruimte.
Troeven op een rij :
EPC-label D – 371 kWh/(m²·jaar)
Elektrische keuring conform
Nieuwe gasketel (2023)
Momenteel verhuurd (conformiteitsattest aanwezig) maar vrij bij akte !
Centrale ligging en vier slaapkamers
Deze woning biedt betaalbaarheid én potentieel.
Ideaal voor wie houdt van een renovatie-uitdaging en graag zijn eigen stempel drukt op een woning.
Met wat creativiteit maakt u hier een eigentijdse, gezellige thuis – volledig op maat van uw wensen.
📞 Meer info of een bezoek?
Contacteer Ellen: 0475 400 770 – ellen@altro-vastgoed.be
EPC-label D – 371 kWh/(m²·jaar) - elektriciteit conform - asbestveilig
Nieuwe gasketel (2023)
Momenteel verhuurd – ook ideaal als investering -conformiteitsattest aanwezig
Centrale ligging en vier slaapkamers
Kenmerken
4 slaapkamer(s)
1 Badkamer(s)
1 Toilet(ten)
Terras
Riolering
Gas
Telefoonbekabeling
Electriciteit
Dubbele beglazing
Algemene Informatie
- Totale oppervlakte
- 46 m²
- Bewoonbare opp.
- 101 m²
- Bouwjaar
- 1874
- Slaapkamer 1
- 16 m²
- Slaapkamer 2
- 7 m²
- Slaapkamer 3
- 10 m²
- Slaapkamer 4
- 10 m²
- Terras 1
- 4 m²
- Woonkamer
- 28 m²
- Keuken
- 8 m²
Energieprestaties
- EPC categorie

- EPC
- 371 kWh/m²
- EPC referentie
- 20221128-0002739130-RES-1
Stedenbouwkundige Informatie
- Overstromingsgevoelig
- Nee
- Elektriciteitskeuring beschikbaar
- Ja, conform
- Bouwvergunning
- Nee
- Voorkooprecht
- Ja
- Verkavelingsvergunning
- Nee
- Bodemattest
- Ja
- Asbestattest
- Ja
- G-score
- B
- P-score
- B
Exterieur
De woning heeft een verzorgde en eenvoudige gevel die perfect past in het rustige straatbeeld van de Klapeksterstraat. Met een klein koertje achteraan geniet u van een fijne buitenruimte om te ontspannen. Het exterieur biedt een mooie basis die met wat opfrissing helemaal kan stralen.
Interieur
De woning heeft ruime, lichte kamers en een praktische indeling. Zowel de keuken als de badkamer kunnen een opfrissing gebruiken, waardoor u deze ruimtes eenvoudig naar eigen smaak kunt aanpassen en moderniseren. Zo maakt u hier snel een warme en gezellige thuis van, helemaal in uw stijl.
Energie
EPC-label D – 371 kWh/(m²·jaar) - elektriciteit conform - asbestveilig
Ligging
De Klapeksterstraat ligt in een aangename, rustige buurt met alle voorzieningen zoals scholen, winkels en openbaar vervoer binnen handbereik. Dankzij de goede bereikbaarheid bent u snel in het centrum van Gent en op belangrijke invalswegen. Ideaal voor starters en jonge gezinnen die comfort en rust zoeken.












