Woning met uitbreidingsmogelijkheden in hartje Gent
Lorkenstraat 1, 9000 Gent
Ref. 7201759
Beschrijving
Ben je op zoek naar een starterswoning die je naar eigen smaak kunt moderniseren of een interessante investering? Dan is deze woning aan de Nieuwevaart in Gent zeker het bekijken waard.
Gelegen in een levendige buurt, dicht bij het centrum, combineert deze woning de dynamiek van het stadsleven met een rustige ligging. De woning beschikt over twee ruime slaapkamers en heeft reeds vernieuwde ramen. Daarnaast biedt ze mogelijkheden tot uitbreiding, wat extra ruimte en wooncomfort kan creëren.
De Lorkenstraat is een populaire buurt met tal van winkels, gezellige cafés en restaurants, groene zones en sportfaciliteiten. Dankzij de vlotte bereikbaarheid met het openbaar vervoer en de fiets ben je in enkele minuten in het hart van Gent.
Zie jij de (uitbreidings-)mogelijkheden van deze woning? Plan dan vandaag nog een bezoek en ontdek het potentieel zelf! Contacteer Stijn!
Woning met vele mogelijkheden!
Op uitstekende ligging te Gent
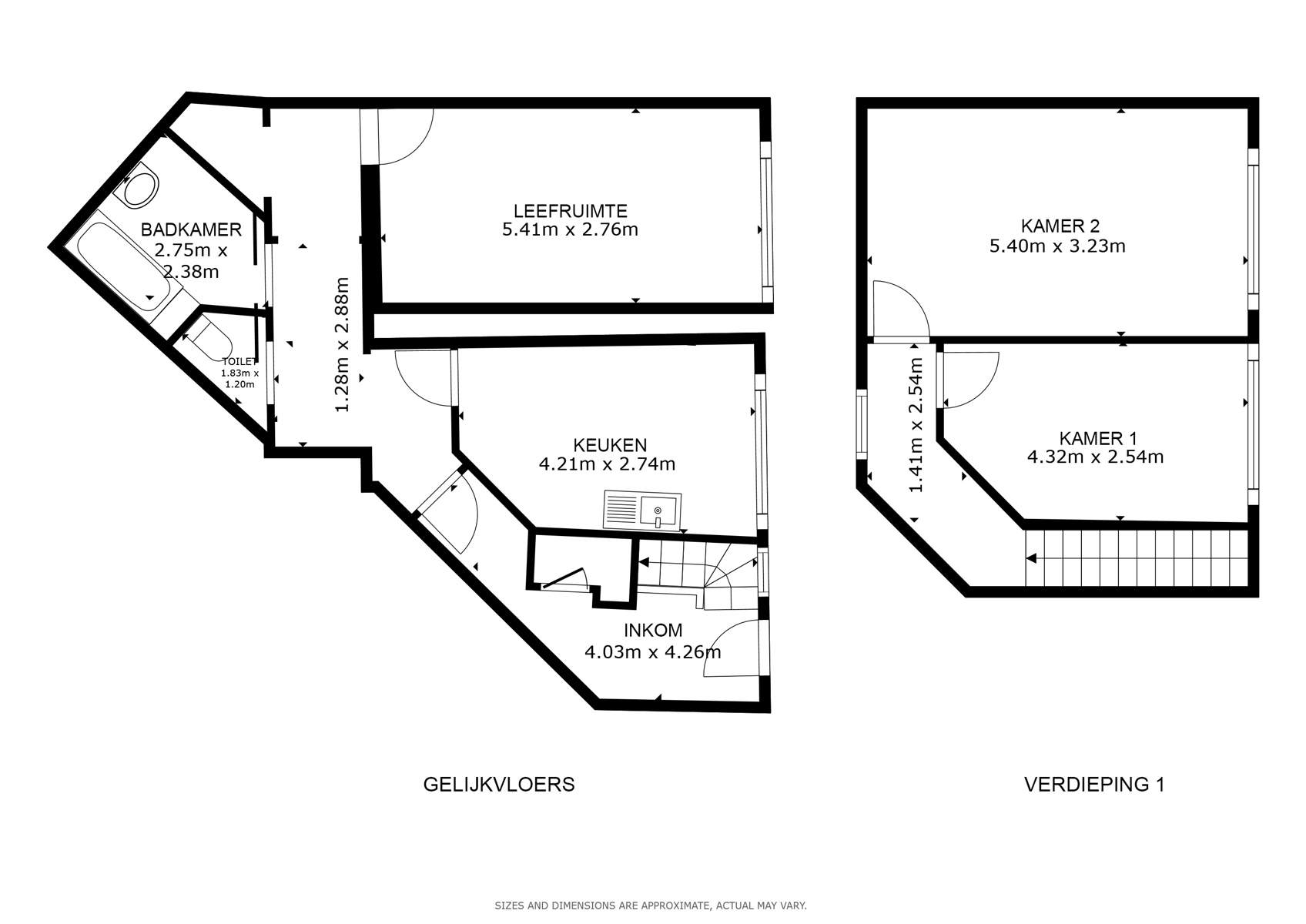
Twee slaapkamers
Uitbreidingsmogelijkheden
Onmiddellijk beschikbaar
Kenmerken
2 slaapkamer(s)
1 Badkamer(s)
1 Toilet(ten)
Gas
Electriciteit
Dubbele beglazing
Algemene Informatie
- Totale oppervlakte
- 70 m²
- Bewoonbare opp.
- 111 m²
- Bouwjaar
- 1899
- Renovatieverplichting
- Ja
Energieprestaties
- EPC categorie

- EPC
- 563 kWh/m²
- EPC referentie
- 20240220-0003149442-RES-1
Stedenbouwkundige Informatie
- Overstromingsgevoelig
- Nee
- Elektriciteitskeuring beschikbaar
- Ja, niet conform
- Bouwvergunning
- Nee
- Voorkooprecht
- Nee
- Verkavelingsvergunning
- Nee
- Bodemattest
- Ja
- Asbestattest
- Ja, 19/02/2024
- G-score
- A
- P-score
- A
Exterieur
De woning biedt een solide basis en beschikt reeds over vernieuwde ramen. Dankzij de mogelijkheden tot uitbreiding kan je hier extra ruimte creëren en het wooncomfort naar een hoger niveau tillen. Met een eigen touch maak je van deze starterswoning een eigentijdse thuis of een interessante investering.
Interieur
De woning biedt een solide basis en beschikt reeds over vernieuwde ramen. Dankzij de mogelijkheden tot uitbreiding kan je hier extra ruimte creëren en het wooncomfort naar een hoger niveau tillen. Met een eigen touch maak je van deze starterswoning een eigentijdse thuis of een interessante investering.
Ligging
Deze woning ligt aan de Nieuwevaart in Gent, een bruisende buurt op korte afstand van het centrum. Je geniet hier van de dynamiek van de stad, terwijl je toch in een rustige omgeving woont. Met winkels, cafés, restaurants en groene zones in de buurt heb je alles binnen handbereik. Bovendien ben je dankzij het openbaar vervoer en de vlotte fietsroutes in een mum van tijd in het hart van Gent.
















