Ruime eigendom met 326 m² woonruimte + 79 m² handel – Gent
Bevrijdingslaan 25, 9000 Gent
Ref. 7061978
Beschrijving
Bent u op zoek naar een woning met veel ruimte én mogelijkheden?
Deze unieke eigendom in een levendige buurt vlak bij het centrum van Gent biedt u maar liefst 326 m² bruikbaar vloeroppervlak en
daarbovenop een handelsruimte van 79 m² met aparte ingang.
Troeven
Enorme bewoonbare oppervlakte, ideaal voor grote gezinnen, co-housing of wie wonen en werken wil combineren
Handelsruimte met winkelgedeelte, kitchenette, toilet en kelder
Ligging vlakbij centrum Gent, scholen, winkels, sportcentra, openbaar vervoer en belangrijke invalswegen
Veel potentieel om volledig naar eigen smaak te renoveren en in te richten
EPC = B = 157 kWh/(m2 jaar) woonhuis - asbestveilig
EPC = C = 319 kWh/(m2 jaar) handelsruimte - asbestveilig
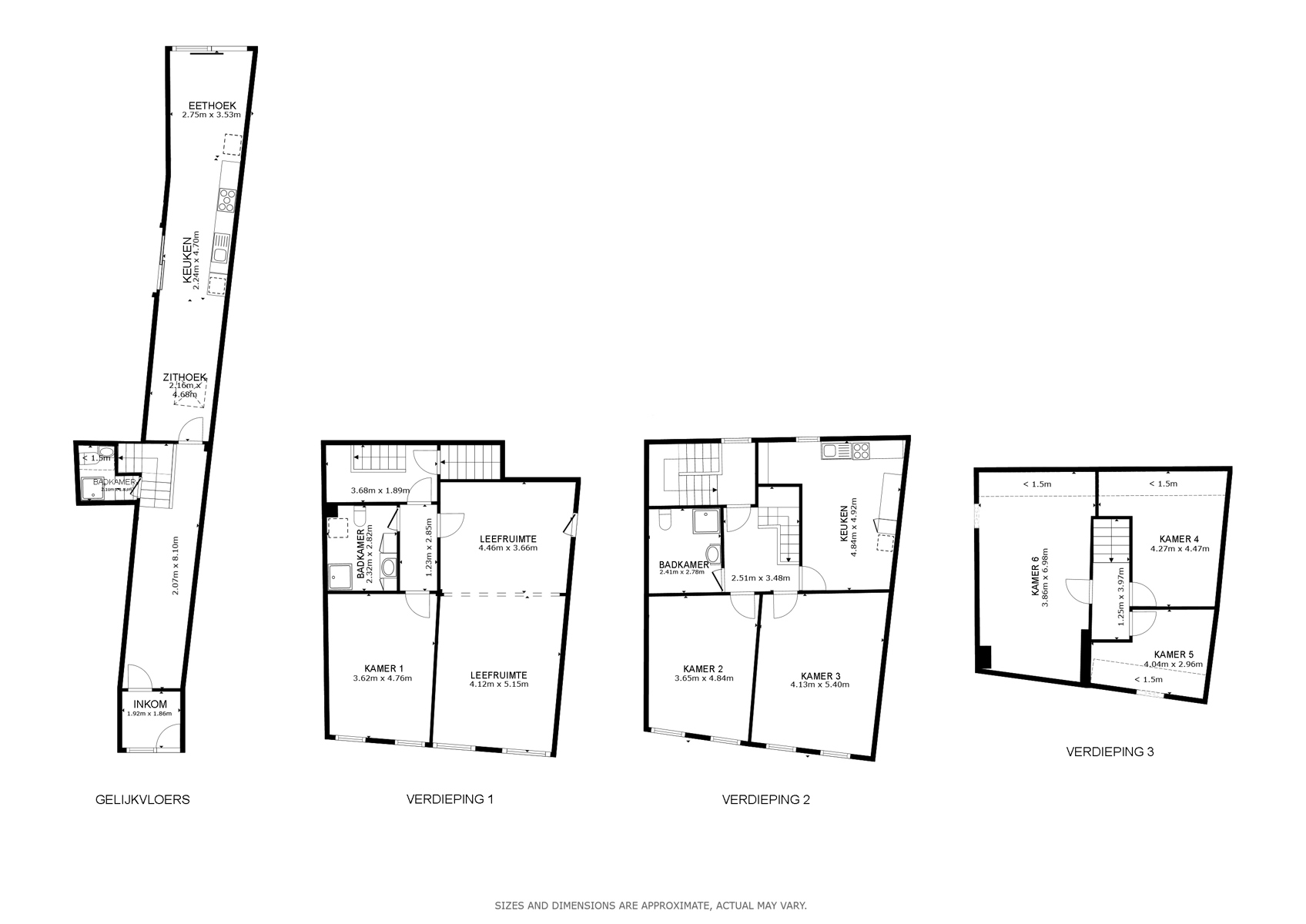
Indeling woning :
Gelijkvloers: inkomhal, volledig ingerichte leefkeuken met toegang tot koer, badkamer
Eerste verdieping: zeer ruime leefruimte, slaapkamer, badkamer
Tweede verdieping: 2 slaapkamers, keuken, badkamer
Zolderverdieping: 3 ruime kamers
Indeling handelsruimte :
Winkelgedeelte
Ruimte met kitchenette en toilet
Kelder
Deze eigendom is ideaal voor:
Combinatie wonen + werken: winkel, praktijkruimte, atelier of kantoor aan huis
Co-housing: makkelijk op te delen voor samenwonen met vrienden of familie
Meergezinswoning (mits vergunning): potentieel voor meerdere wooneenheden
Ruime gezinswoning: perfect voor grote of samengestelde gezinnen
Kangoeroewonen: voor meerdere generaties onder één dak
Investeringsproject: topligging voor verhuur of herontwikkeling
Kortom: een uitzonderlijke eigendom met zeeën van ruimte en eindeloze mogelijkheden, waar uw plannen – groot of klein – tot leven kunnen komen.
Voor meer inlichtingen of een bezoek, contacteer Ellen : 0475.400.770 - ellen@altro-vastgoed.be
326 m² bruikbaar vloeroppervlak + 79 m² handelsruimte met aparte ingang.
Uitzonderlijk veel potentieel
Topligging vlakbij centrum Gent
Veel kamers en indelingsmogelijkheden
Kenmerken
7 slaapkamer(s)
3 Badkamer(s)
4 Toilet(ten)
Terras
Riolering
Gas
Telefoonbekabeling
Kelder
Electriciteit
Dubbele beglazing
Algemene Informatie
- Totale oppervlakte
- 170 m²
- Bewoonbare opp.
- 405 m²
- Bouwjaar
- 1900
- Slaapkamer 1
- 17 m²
- Slaapkamer 2
- 17 m²
- Slaapkamer 3
- 22 m²
- Slaapkamer 4
- 23 m²
- Slaapkamer 5
- 27 m²
- Terras 1
- 14 m²
- Woonkamer
- 37 m²
- Keuken
- 30 m²
- Bureau
- 19 m²
Energieprestaties
- EPC categorie

- EPC
- 157 kWh/m²
- EPC referentie
- 20241204-0003468655-RES-1
Stedenbouwkundige Informatie
- Overstromingsgevoelig
- Nee
- Elektriciteitskeuring beschikbaar
- Ja, niet conform
- Bouwvergunning
- Ja
- Voorkooprecht
- Ja
- Verkavelingsvergunning
- Nee
- Bodemattest
- Ja
- Asbestattest
- Ja, 03/12/2024
- G-score
- B
- P-score
- B
Exterieur
Deze eigendom springt in het oog met zijn brede voorgevel, hoge ramen en meerdere bouwlagen. De aparte inkom voor de handelsruimte versterkt de veelzijdigheid van het pand. Met enkele verfraaiingen kan de gevel opnieuw stralen en perfect aansluiten bij de levendige uitstraling van de Bevrijdingslaan.
Interieur
Binnen ademt de woning karakter, met hoge plafonds die het ruimtelijke gevoel versterken en originele houten vloeren die warmte en charme toevoegen. De grote kamers laten zich vlot herinrichten naar uw wensen, terwijl de indeling en oppervlakte eindeloze mogelijkheden bieden.
Energie
EPC = B = 157 kWh/(m2 jaar) woonhuis - asbestveilig EPC = C = 319 kWh/(m2 jaar) handelsruimte - asbestveilig
Ligging
Bevrijdingslaan combineert historische architectuur met toekomstgerichte stadsontwikkeling. De ligging geniet van excellente mobiliteit, bedrijvigheid en een rijke buurtcultuur. Een uitstekende keuze voor wie wil wonen én investeren in een authentieke, in transformatie zijnde Gentse buurt.






















