Kantoorgebouw met loods op strategische locatie!
Kwatrechtsteenweg 152, 9230 Wetteren
Ref. 7055724
Beschrijving
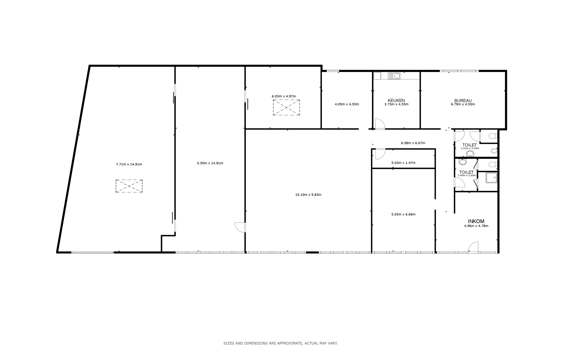
Te koop in de kmo-zone van Kwatrecht: een veelzijdig kantoorgebouw met ruime loods, perfect voor ondernemers die op zoek zijn naar een combinatie van representatieve werkruimtes en functionele opslag. Het pand, momenteel in gebruik als meubelwinkel, biedt een doordachte indeling met inkomhal, diverse compartimenteringen die ideaal zijn als kantoren of vergaderzalen, en een volledig uitgeruste keuken. Voor het comfort van personeel en bezoekers zijn er gesplitste toiletten voor dames en heren, waarvan één voorzien is van een praktische doucheruimte.
Naast de huidige winkelruimte bevinden zich nog 2 aanpalende loodsen. De winkel en 1°loods dateren uit 1965, maar werden later gerenoveerd en in 2012 werd de 2e loods bijgebouwd. De nieuwste loods blinkt uit met een vrije hoogte van maar liefst 5,55 meter. De grote elektrische poort biedt een vlotte toegang, ideaal voor logistieke activiteiten.
Het gebouw is voorzien van tal van moderne extra’s die het niet alleen functioneel maar ook toekomstgericht maken. Zo zijn er zonnepanelen geplaatst in 2021, beschikt het pand over een laadpaal voor elektrische wagens, elektrische buitenzonwering van Renson en een vals plafond waarin bekabeling netjes weggewerkt is. Ook aan veiligheid is gedacht: het alarmsysteem biedt de nodige gemoedsrust.
Dankzij de gunstige ligging in de kmo-zone van Kwatrecht geniet u van een uitstekende bereikbaarheid. De nabijheid van het station van Kwatrecht en de snelle aansluiting op de autostrades en andere belangrijke invalswegen maken dit pand een absolute troef voor elke onderneming.
Belangrijk om te weten: geen renovatieplicht (EPCB) en het gebouw is asbestveilig. Elektrische keuring is in opmaak.
Alle relevante documenten, zoals het asbestattest en het EPC, zijn eenvoudig te downloaden via de Altro-website.
Kortom: dit pand combineert kantoorcomfort, ruime opslagmogelijkheden en een strategische ligging met moderne voorzieningen en duurzaamheid.
Eenvoudige ombouw tot kantoorruimte.
Strategische ligging nabij station, invalswegen en autostrades.
2 loodsen die zorgen voor veel opslagplaats.
Parkeergelegenheid voor de deur.
Kenmerken
Zonnepanelen
Parkeren
Klimaatcontrole
Riolering
Gas
Telefoonbekabeling
Electriciteit
Dubbele beglazing
Algemene Informatie
- Totale oppervlakte
- 795 m²
- Bewoonbare opp.
- 531 m²
- Bouwjaar
- 1965
Energieprestaties
- EPC referentie
- 20250808-0003661391-KNR-1
Stedenbouwkundige Informatie
- Overstromingsgevoelig
- Nee
- Elektriciteitskeuring beschikbaar
- Ne
- Bouwvergunning
- Ja
- Voorkooprecht
- Ja
- Verkavelingsvergunning
- Nee
- Bodemattest
- Ja
- Asbestattest
- Ja, 08/08/2025
- G-score
- A
- P-score
- A
Exterieur
Naast de huidige winkelruimte bevinden zich nog 2 aanpalende loodsen. De winkel en 1°loods dateren uit 1965, maar werden later gerenoveerd en in 2012 werd de 2e loods bijgebouwd. Deze laatste onderscheidt zich door een vrije hoogte van maar liefst 5,55 meter. Dankzij de grote elektrische poort is er een vlotte toegang, wat het geheel bijzonder geschikt maakt voor logistieke activiteiten of opslag.
Interieur
Binnenin biedt het gebouw een doordachte indeling die momenteel in gebruik is als meubelwinkel. De inkomhal geeft toegang tot diverse compartimenten die ideaal zijn ingericht als kantoren of vergaderzalen. Daarnaast is er een volledig uitgeruste keuken aanwezig. Voor het comfort van zowel personeel als bezoekers zijn er aparte toiletten voor dames en heren, waarbij één voorzien is van een praktische doucheruimte. Het vals plafond zorgt ervoor dat alle bekabeling netjes en onzichtbaar weggewerkt is, wat bijdraagt aan een verzorgde en professionele uitstraling.
Energie
Het gebouw beschikt over verschillende moderne voorzieningen die bijdragen aan duurzaamheid en comfort. In 2021 werden zonnepanelen geplaatst en bovendien is het pand uitgerust met een laadpaal voor elektrische wagens. Voor extra gebruiksgemak is er elektrische zonnewering aanwezig van Renson. Ook aan veiligheid is gedacht dankzij een alarmsysteem. Belangrijk om te vermelden is dat het gebouw asbestveilig is en geen renovatieplicht (EPCB) kent. De elektrische keuring is momenteel in opmaak en alle relevante documenten, zoals het asbestattest en het EPC, zijn eenvoudig te downloaden via de Altro-website.
Ligging
Dit veelzijdige kantoorgebouw met ruime loods bevindt zich in de kmo-zone van Kwatrecht, een strategische locatie die uitermate geschikt is voor ondernemingen. Dankzij de nabijheid van het station van Kwatrecht en de vlotte aansluiting op autostrades en belangrijke invalswegen, geniet dit pand van een uitstekende bereikbaarheid. Hierdoor is het zowel voor klanten als leveranciers eenvoudig bereikbaar.













