Historische triplex-loft in centrum Mechelen
Begijnenstraat 50a, 2800 Mechelen
Ref. 7139010
Beschrijving
EXCLUSIEVE KANS: Unieke loft in historisch Mechelen!
Droom je van wonen in een historisch pand met hedendaags comfort? Deze gerenoveerde triplex in het voormalige Lorettenklooster aan de Begijnenstraat 50a combineert authentieke charme met moderne luxe.
Richtprijs: €549.000 I beschikbaarheid vanaf akte
Unieke sfeer en indeling
Bij binnenkomst via de monumentale boogingang voel je de rijke geschiedenis. De open leefruimte straalt karakter uit met hoge plafonds, grote ramen en een stijlvol kookeiland.
Rust & ruimte in de stad
Ondanks de centrale ligging geniet je van privacy en stilte. De gemeenschappelijke binnentuin (1100 m²) en je eigen terras bieden een groene oase, terwijl de Vismarkt met cafés en winkels op wandelafstand ligt.
Comfort en luxe
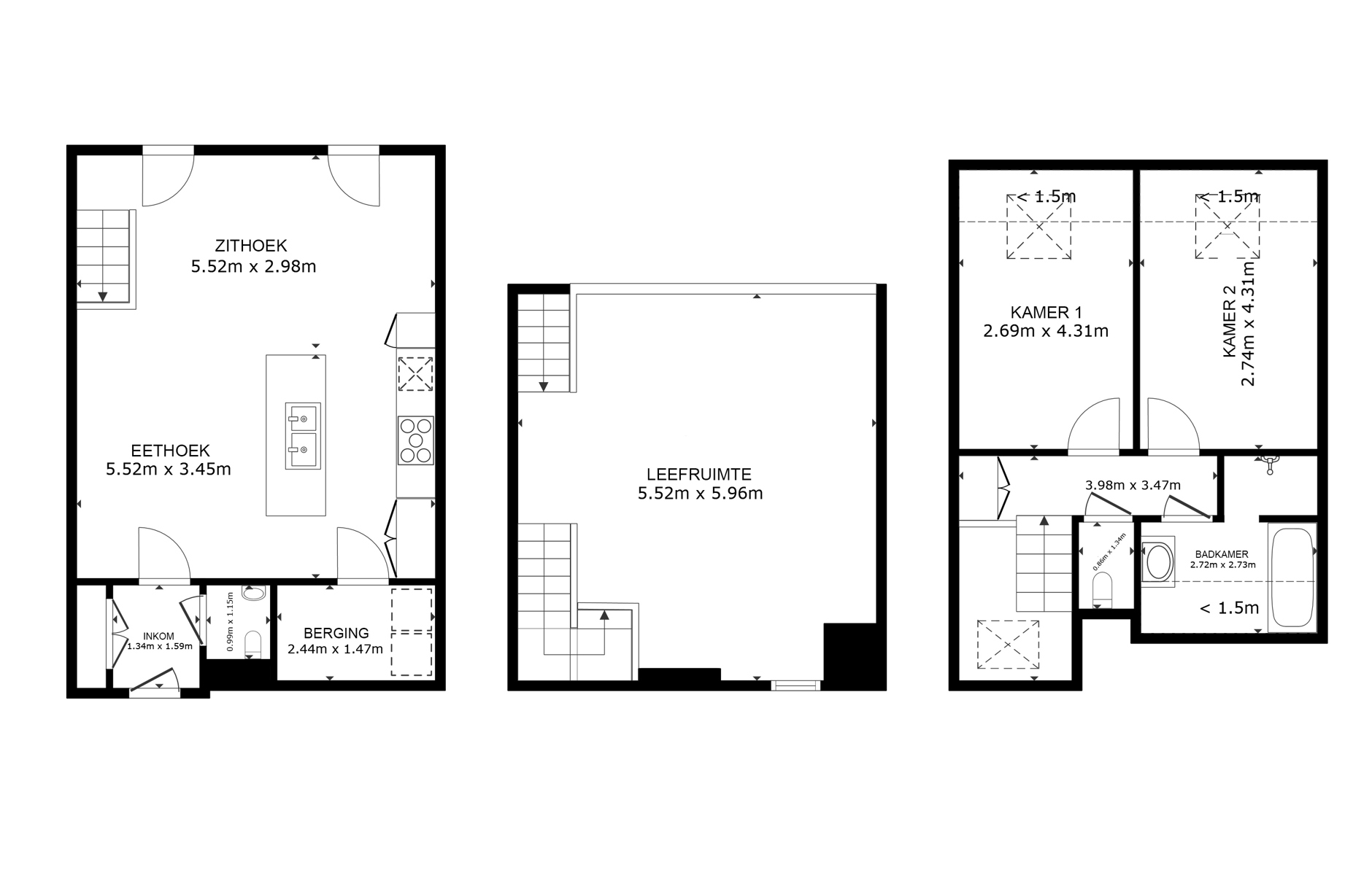
Met 137 m² aan woonoppervlakte over drie verdiepingen, twee ruime slaapkamers en een luxueuze badkamer (bad & inloopdouche), heb je hier alle ruimte. Extra troeven: een kelderberging (16 m²) en optie tot een garage.
Duurzaam & energiezuinig
Met een EPC-B label, privatieve meters en lage maandelijkse kosten (€150) woon je hier comfortabel én voordelig.
Perfecte locatie
Met een mobiscore van 9,6/10 ligt alles binnen handbereik: station op 2 km, vlotte verbindingen en alle voorzieningen dichtbij.
Mis deze unieke kans niet!
Plan snel een bezoek en ontdek de charme van deze uitzonderlijke triplex!
Top afwerking
Uniek pand met spitsboog ramen
Privatie terras op tuin niveau
Privatieve ruime berging
Optioneel parking te koop en/of te huur
360° view
Kenmerken
2 slaapkamer(s)
1 Badkamer(s)
2 Toilet(ten)
Tuin
Terras
Riolering
Gas
Telefoonbekabeling
Kelder
Electriciteit
Dubbele beglazing
Algemene Informatie
- Totale oppervlakte
- 47 m²
- Bewoonbare opp.
- 137 m²
- Bouwjaar
- 1850
- Renovatiejaar
- 2011
- Kadastraal inkomen
- € 1.291
- Slaapkamer 1
- 14 m²
- Slaapkamer 2
- 13 m²
- Terras 1
- 20 m²
- Woonkamer
- 37 m²
- Keuken
- 19 m²
- Badkamer
- 8 m²
- Tuin
- 1100 m²
Energieprestaties
- EPC categorie

- EPC
- 104 kWh/m²
- EPC referentie
- 0003415216
Stedenbouwkundige Informatie
- Overstromingsgevoelig
- Nee
- Elektriciteitskeuring beschikbaar
- Ja, conform
- Bouwvergunning
- Ja
- Voorkooprecht
- Ja
- Bodemattest
- Ja
- Asbestattest
- Ja, 16/10/2024
- G-score
- B
- P-score
- B
Exterieur
Nostalgie ten top
Interieur
Afgewerkt met smaak voor detail
Ligging
Gesitueerd nabij de Vismarkt en Dijle maar toch zeer rustig






















