Gelijkvloers appartement met tuin en prachtig uitzicht
Dorpsstraat 28, 1982 Weerde
Ref. 6631049
Beschrijving
Dit prachtige gelijkvloerse nieuwbouwappartement combineert hedendaags wooncomfort met een idyllische, landelijke omgeving. Gelegen in een rustige buurt, geniet u hier van alle moderne luxe, terwijl u zich omringd voelt door groen en open ruimtes.
Dit appartement, dat gebouwd zal worden in 2025, wordt opgetrokken met oog voor detail en de nieuwste technologieën, zodat u kunt rekenen op een energiezuinige en duurzame woonst.
Het appartement beschikt over een ruime en lichtrijke leefruimte met een open keuken en een stijlvol kookeiland. Deze ruimte vormt het kloppende hart van de woning en nodigt uit tot gezellige momenten met familie en vrienden. De grote raampartijen zorgen voor een maximale lichtinval en bieden een prachtig uitzicht op de tuin en de omliggende natuur. De keuken wordt voorzien van hoogwaardige materialen en moderne inbouwtoestellen, zodat koken telkens weer een plezier wordt.
Verder zijn er twee volwaardige slaapkamers die optimaal ingedeeld zijn om een comfortabel en rustig slaapklimaat te garanderen. De badkamer straalt stijl en elegantie uit en beschikt over een ruime inloopdouche. Dankzij het gebruik van kwalitatieve materialen en moderne afwerkingen ervaart u hier dagelijks een gevoel van luxe en ontspanning.
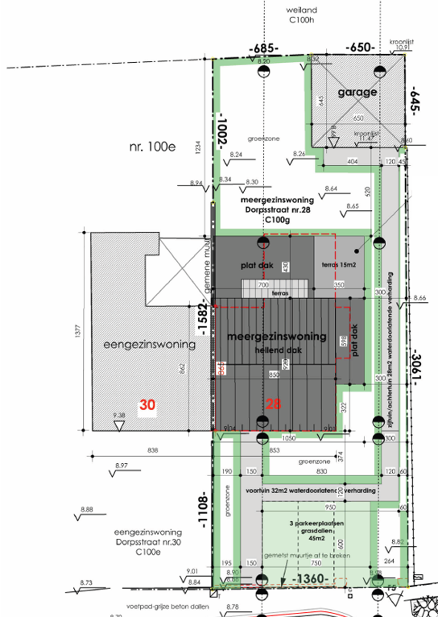
Een absolute meerwaarde van dit appartement is de buitenruimte. Het privatieve terras van 15m² vormt een perfect verlengstuk van de leefruimte en nodigt uit tot heerlijk ontspannen in de buitenlucht. De tuin biedt een oase van rust en ruimte, waar u optimaal kunt genieten van het landelijke uitzicht. Bovendien beschikt u over een aparte tuinberging van 21m², ideaal voor het opbergen van fietsen, tuinmeubilair of andere spullen.
Dit appartement is volledig futureproof en voorzien van de nieuwste energiebesparende technieken. De vloerverwarming, gekoppeld aan een efficiënte warmtepomp, zorgt voor een aangenaam en gelijkmatig binnenklimaat. Zonnepanelen dragen bij aan een lagere energierekening en de ventilatie type D garandeert een gezonde luchtkwaliteit binnen de woning.
Daarnaast beschikt het appartement over een eigen parkeerplaats voor de deur, wat extra comfort en gemak biedt. De rustige ligging in combinatie met de uitstekende energieprestaties maken dit appartement de perfecte woonplek voor wie op zoek is naar rust, ruimte en duurzaamheid.
Bent u op zoek naar een energiezuinig en modern nieuwbouwappartement met een prachtige tuin en een adembenemend uitzicht? Dan is dit uw kans! Neem vandaag nog contact met ons op voor meer informatie of een bezoek ter plaatse.
Kenmerken
2 slaapkamer(s)
1 Badkamer(s)
1 Toilet(ten)
Zonnepanelen
Tuin
Parkeren
Terras
Riolering
Parlofoon
Telefoonbekabeling
Electriciteit
Dubbele beglazing
Algemene Informatie
- Totale oppervlakte
- 497 m²
- Bewoonbare opp.
- 113 m²
- Bouwjaar
- 2025
- Slaapkamer 1
- 13 m²
- Slaapkamer 2
- 11 m²
- Terras 1
- 15 m²
- Woonkamer
- 28 m²
- Keuken
- 12 m²
- Badkamer
- 5 m²
- Tuin
- 212 m²
Energieprestaties
- EPC categorie

Stedenbouwkundige Informatie
- Overstromingsgevoelig
- Mogelijk
- Elektriciteitskeuring beschikbaar
- Ja, conform
- Bouwvergunning
- Ja
- Voorkooprecht
- Nee
- Verkavelingsvergunning
- Ja
- G-score
- C
- P-score
- C









