Te renoveren woning op centrale ligging
Ambachtstraat 16, 9000 Gent
Ref. 7141417
Beschrijving
Bent u op zoek naar een woning met potentieel op een uitstekende locatie in Gent? Dan is deze eigendom beslist iets voor u. Deze woning bevindt zich op korte afstand van station Gent-Dampoort, het stadscentrum en tal van voorzieningen zoals winkels, scholen, horeca en openbaar vervoer. Dankzij de nabijheid van de belangrijkste invalswegen en autosnelwegen geniet u hier bovendien van een vlotte bereikbaarheid in alle richtingen, wat deze ligging extra aantrekkelijk maakt voor zowel eigen bewoning als investering.
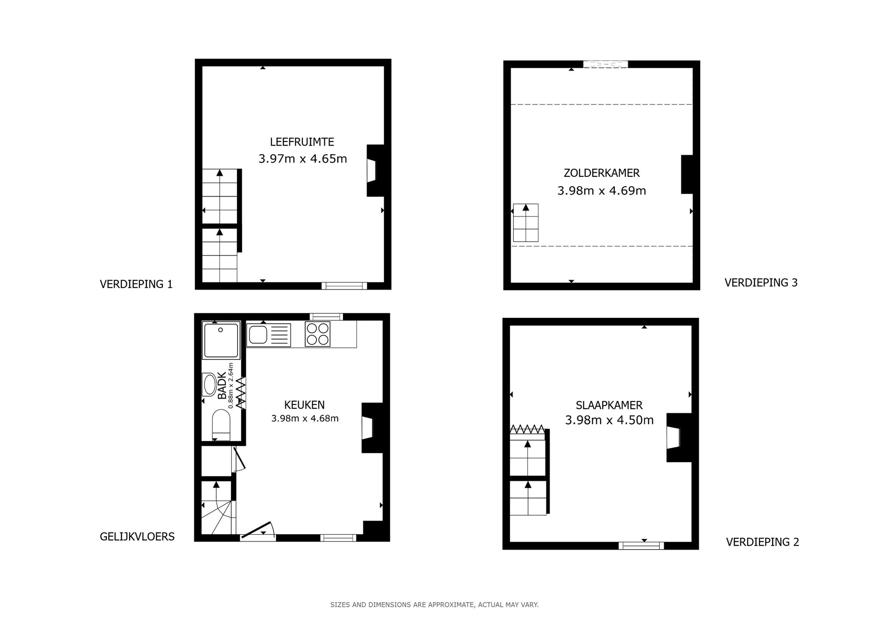
Bij het betreden van de woning komt u terecht in een open ruimte, waar zich momenteel de keuken en de badkamer bevinden. Deze ruimte biedt tal van mogelijkheden voor een herinrichting naar eigen smaak en stijl. Op de eerste verdieping bevindt zich de leefruimte, die gemakkelijk kan worden ingericht als een gezellige woonruimte. De tweede verdieping beschikt over een slaapkamer van bijna 18 m² en een bijkomende zolderkamer, die nog volledig kan worden afgewerkt naar wens. Deze zolderkamer kan perfect dienen als extra slaapkamer, bureau, hobbyruimte of dressing.
Ideaal als eerste woning voor starters of jonge koppels. Ook voor investeerders biedt dit pand interessante perspectieven. Na renovatie kan de woning vlot verhuurd worden aan een aantrekkelijke huurprijs, mede dankzij de populaire ligging nabij Dampoort en het centrum van Gent. De stabiele vraag naar huurwoningen in deze buurt maakt van deze eigendom een slimme langetermijninvestering.
Centrale ligging.
Te renoveren.
1 slaapkamer , mogelijkheid tot een tweede.
Woning met potentieel.
Kenmerken
2 slaapkamer(s)
1 Badkamer(s)
1 Toilet(ten)
Riolering
Gas
Electriciteit
Dubbele beglazing
Algemene Informatie
- Totale oppervlakte
- 19 m²
- Bewoonbare opp.
- 64 m²
- Slaapkamer 1
- 12 m²
- Slaapkamer 2
- 12 m²
- Woonkamer
- 18 m²
- Keuken
- 3 m²
Energieprestaties
- EPC categorie

- EPC
- 233 kWh/m²
- EPC referentie
- 0003582059
Stedenbouwkundige Informatie
- Overstromingsgevoelig
- Nee
- Elektriciteitskeuring beschikbaar
- Ja, niet conform
- Bouwvergunning
- Nee
- Voorkooprecht
- Nee
- Verkavelingsvergunning
- Nee
- Bodemattest
- Ja
- Asbestattest
- Ja, 28/04/2025
- G-score
- A
- P-score
- A
Exterieur
Deze woning is een echte opportuniteit voor wie op zoek is naar een renovatieproject. Met de juiste aanpak kan hier een charmante stadswoning van gemaakt worden, ideaal als eerste woning voor starters of jonge koppels
Interieur
Bij het betreden van de woning komt u terecht in een grote open ruimte, waar zich momenteel de keuken en de badkamer bevinden. Deze ruimte biedt tal van mogelijkheden voor een herinrichting naar eigen smaak en stijl.
Energie
EPC score C
Ligging
Centrale ligging, op wandelafstand van talrijke winkels en het openbaar vervoer.






