Strakke moderne 4 slpk. villa op ruim ZW perceel!
Boldersdreef 6, 8210 Zedelgem Veldegem
Ref. 7184308
Beschrijving
In een rustige buurt van Veldegem, op een steenworp van de op- en afrit Ruddervoorde, bevindt zich deze strakke moderne villa. Gebouwd in 2013 en tot in de puntjes afgewerkt, combineert deze woning een doordachte architectuur met een uitzonderlijk wooncomfort.
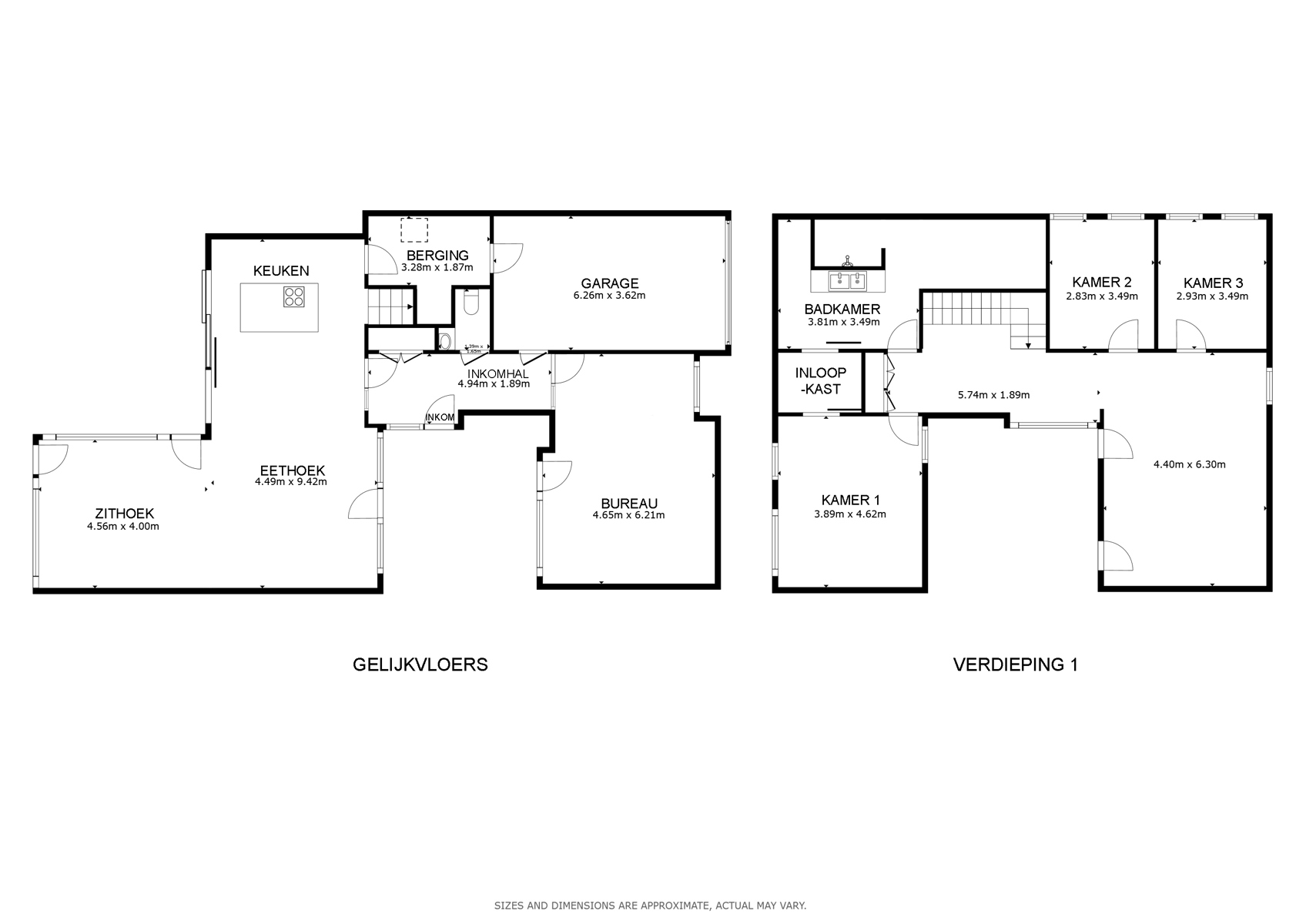
Met een bewoonbare oppervlakte van 286 m² geniet u op het gelijkvloers van een lichtrijke leefruimte met open keuken en grote raampartijen die uitkijken op de prachtig aangelegde tuin. Daarnaast is er een bureau/praktijkruimte, een afzonderlijk gastentoilet, een handige berging en een inpandige garage.
Op de eerste verdieping bevinden zich 4 slaapkamers, waarvan één met dressing en directe toegang tot een zuidwestgericht terras van 25 m². De ruime badkamer beschikt over een inloopdouche, dubbele wastafel met opbergkasten en een extra toilet. Aansluitend is er nog een open ruimte die u naar wens kan inrichten als fitness, sauna of ontspanningshoek.
Het perceel van 1.493 m² is zuidwest georiënteerd en garandeert zon, privacy en rust. Toch geniet u hier van een uitstekende bereikbaarheid richting Brugge, Kortrijk en de E40.
Een uitzonderlijk aanbod voor wie houdt van modern wonen met ruimte, licht en een hoogwaardige afwerking.
Interesse in dit uitzonderlijk vastgoed?
Ruim perceel van 1.493 m² – zuidwest georiënteerd met veel privacy.
286 m² bewoonbare oppervlakte – lichtrijke leefruimte en open keuken.
Terras van 25 m² met prachtig zicht op de tuin.
4 slaapkamers + dressing – ideaal voor gezinnen.
Bouwjaar 2011, moderne afwerking – instapklaar en kwalitatief afgewerkt.
360° view
Kenmerken
4 slaapkamer(s)
1 Badkamer(s)
2 Toilet(ten)
Tuin
Parkeren
Terras
Riolering
Gas
Electriciteit
Dubbele beglazing
Algemene Informatie
- Totale oppervlakte
- 1.493 m²
- Bewoonbare opp.
- 286 m²
- Bouwjaar
- 2013
- Kadastraal inkomen
- € 1.355
- Slaapkamer 1
- 10 m²
- Slaapkamer 2
- 10 m²
- Slaapkamer 3
- 28 m²
- Slaapkamer 4
- 18 m²
- Terras 1
- 35 m²
- Woonkamer
- 60 m²
- Keuken
- 12 m²
- Bureau
- 29 m²
- Tuin
- 1493 m²
Energieprestaties
- EPC categorie

- EPC
- 139 kWh/m²
- EPC referentie
- 20250926.0003695545-RES-1
Stedenbouwkundige Informatie
- Overstromingsgevoelig
- Nee
- Elektriciteitskeuring beschikbaar
- Ja, conform
- Bouwvergunning
- Ja
- Voorkooprecht
- Nee
- Verkavelingsvergunning
- Nee
- Bodemattest
- Ja
- G-score
- D

- P-score
- D

Ligging
Deze villa bevindt zich in een bijzonder rustige residentiële buurt van Veldegem, waar u volop kan genieten van privacy en groen. Dankzij de nabijheid van de op- en afrit Ruddervoorde is de woning uitstekend bereikbaar richting Brugge, Kortrijk en de E40. Winkels, scholen en ontspanning liggen op korte afstand, waardoor deze locatie zowel sereen als praktisch is.




























