Winkelpand met loods op strategische locatie!
Kwatrechtsteenweg 152, 9230 Wetteren
Ref. 7110660
Beschrijving
Ontdek dit veelzijdige handelspand met aansluitende loodsen, ideaal gelegen in de KMO-zone van Kwatrecht. Dankzij de vlotte verbinding naar de belangrijkste autostrades en invalswegen, én de nabijheid van het station, combineert dit pand een uitstekende bereikbaarheid met een commerciële toplocatie.
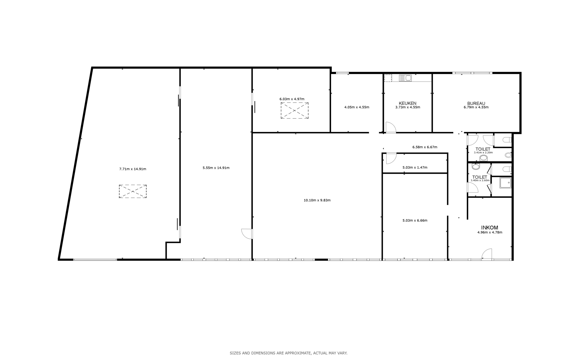
Momenteel ingericht als meubelzaak, biedt het gebouw een uitnodigende inkom en een slimme compartimentering in meerdere ruimtes, waardoor het zich perfect leent voor uiteenlopende handels- of bedrijfsactiviteiten. Naast de winkelruimte vindt u de eerste loods (oorspronkelijk bouwjaar 1965 en later gerenoveerd), terwijl een tweede, modernere loods nog werd toegevoegd in 2012. Samen creëren ze een indrukwekkende bedrijfsoppervlakte met in de nieuwe loods een vrije hoogte tot 5,55 meter, toegankelijk via een grote elektrische poort.
Het pand is voorzien van alle comfort: gesplitste sanitaire voorzieningen voor dames en heren, waarvan één uitgerust met een douche, een volledig ingerichte keuken en een afgewerkt interieur met vals plafond dat de technische bekabeling netjes wegwerkt.
Daarnaast zorgen praktische en duurzame extra’s zoals een laadpaal voor elektrische wagens, elektrische buitenzonwering van Renson en zonnepanelen (geplaatst in 2021) voor een toekomstgerichte investering.
Belangrijk om weten: dit pand is volledig asbestveilig. De elektrische keuring van de volledige installatie is in opmaak. Het nieuwe deel van de installatie met de zonnepanelen is conform gekeurd.
Met zijn combinatie van commerciële uitstraling, praktische loodsen en moderne voorzieningen biedt dit eigendom een unieke opportuniteit voor ondernemers die op zoek zijn naar een strategisch gelegen handelspand met opslagruimte.
Alle relevante documenten, waaronder de elektrische keuring van de zonnepanelen, het asbestattest en het EPC, zijn beschikbaar via de website van Altro.
Strategische locatie dichtbij station en invalswegen.
Parkeermogelijkheid voor de deur.
Gelegen aan een straat met veel voorbijgaand verkeer.
Veel mogelijkheden om het gebouw naar uw noden te optimaliseren.
Kenmerken
Zonnepanelen
Parkeren
Klimaatcontrole
Riolering
Gas
Telefoonbekabeling
Electriciteit
Dubbele beglazing
Algemene Informatie
- Totale oppervlakte
- 795 m²
- Bewoonbare opp.
- 531 m²
- Bouwjaar
- 1965
Energieprestaties
- EPC referentie
- 20250808-0003661391-KNR-1
Stedenbouwkundige Informatie
- Overstromingsgevoelig
- Nee
- Elektriciteitskeuring beschikbaar
- Ne
- Bouwvergunning
- Ja
- Voorkooprecht
- Ja
- Verkavelingsvergunning
- Nee
- Bodemattest
- Ja
- Asbestattest
- Ja, 08/08/2025
- G-score
- A
- P-score
- A
Exterieur
Naast de winkelruimte vindt u de eerste loods (oorspronkelijk bouwjaar 1965 en later gerenoveerd), terwijl een tweede, modernere loods nog werd toegevoegd in 2012. Samen creëren ze een indrukwekkende bedrijfsoppervlakte met in de nieuwe loods een vrije hoogte tot 5,55 meter, toegankelijk via een grote elektrische poort. Met zijn combinatie van commerciële uitstraling, praktische loodsen en moderne voorzieningen biedt dit eigendom een unieke opportuniteit voor ondernemers die op zoek zijn naar een strategisch gelegen handelspand met opslagruimte.
Interieur
Momenteel ingericht als meubelzaak, biedt het gebouw een uitnodigende inkom en een slimme compartimentering in meerdere ruimtes, waardoor het zich perfect leent voor uiteenlopende handels- of bedrijfsactiviteiten. Het pand is voorzien van alle comfort: gesplitste sanitaire voorzieningen voor dames en heren, waarvan één uitgerust met een douche, een volledig ingerichte keuken en een afgewerkt interieur met vals plafond dat de technische bekabeling netjes wegwerkt.
Energie
Daarnaast zorgen praktische en duurzame extra’s zoals een laadpaal voor elektrische wagens, elektrische buitenzonwering van Renson en zonnepanelen (geplaatst in 2021) voor een toekomstgerichte investering. Belangrijk om weten: dit pand is volledig asbestveilig. De elektrische keuring van de volledige installatie is in opmaak. Het nieuwe deel van de installatie met de zonnepanelen is conform gekeurd. Alle relevante documenten, waaronder de elektrische keuring van de zonnepanelen, het asbestattest en het EPC, zijn beschikbaar via de website van Altro.
Ligging
Ontdek dit veelzijdige handelspand met aansluitende loodsen, ideaal gelegen in de KMO-zone van Kwatrecht. Dankzij de vlotte verbinding naar de belangrijkste autostrades en invalswegen, én de nabijheid van het station, combineert dit pand een uitstekende bereikbaarheid met een commerciële toplocatie














