NIEUWE VOORWAARDEN - Opbrengsteigendom met 3 entiteiten
Nieuwstraat 14, 9230 Wetteren
Ref. 5474440
Beschrijving
NIEUWE VOORWAARDEN - Op wandelafstand van het station, treft u deze opbrengsteigendom.
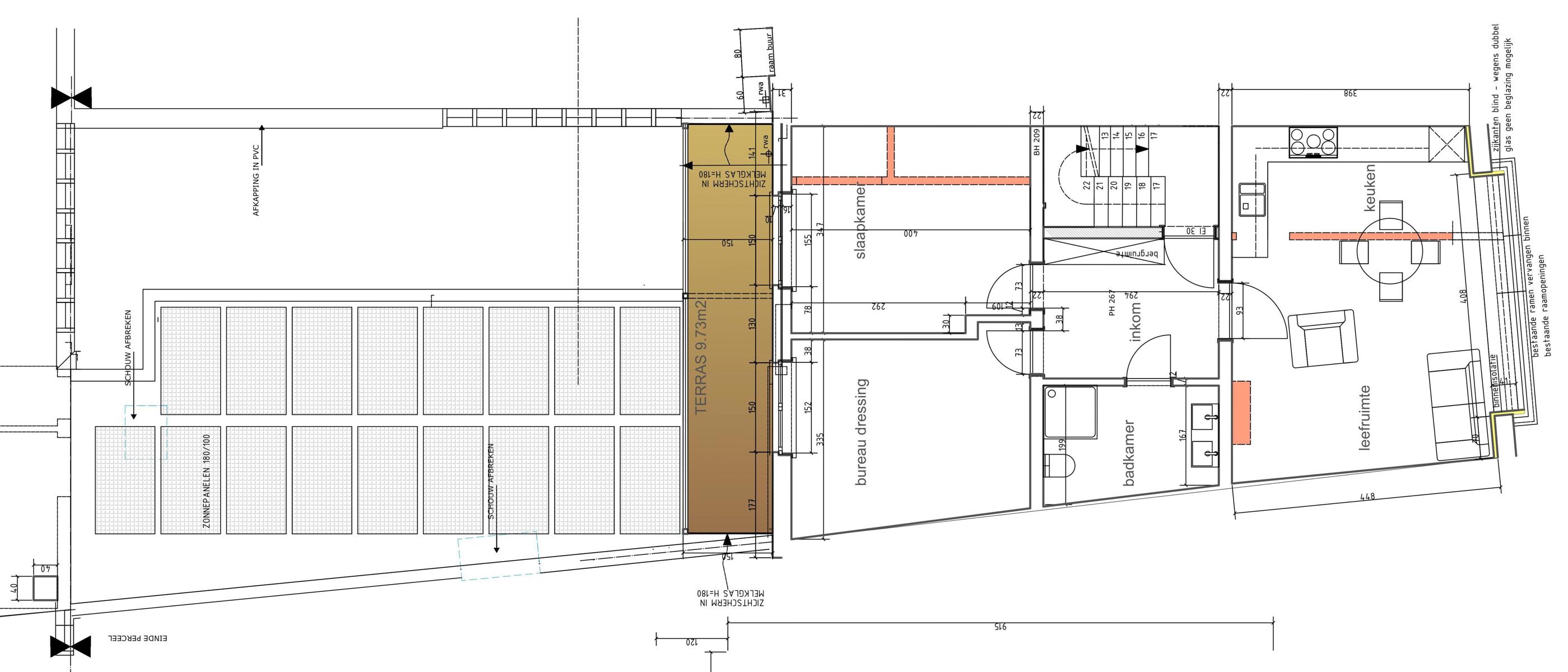
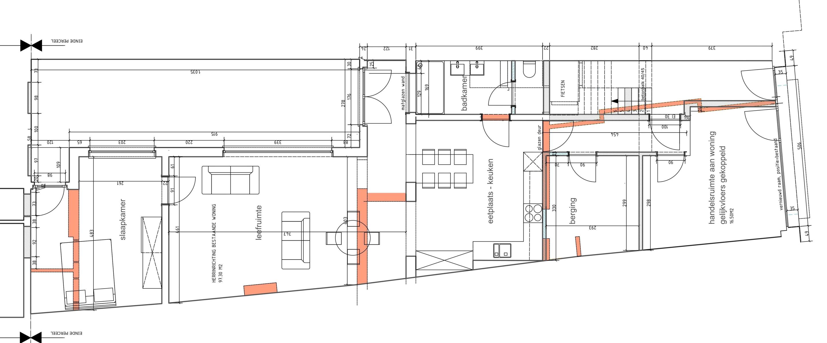
Het gebouw bestaat slechts uit 3 entiteiten: gelijkvloers (nog in te vullen appartement / commercieel), 1e en 2e verdieping bevat elk een appartement met 2 slaapkamers.
Driedubbele beglazing, condenserende gaswandketel, gevel-, vloer- en plafond-isolatie aanwezig om een zeer gunstig energiepeil te ontvangen.
Gelijkvloers: momenteel zijn de ramen vooraan vernieuwd, is er een nieuwe hoofdleiding gas, water en elektriciteit voorzien. De nieuwe, condenserende gasverwarmingsketel werd geïnstalleerd en er is een nieuwe afvoer voor wc, sanitair en cv-ketel. Indeling/afwerking nog zelf verder te bepalen.
De indeling van de appartementen: ruime inkomhal, leefruimte en open keuken met SMEG-kookvuur en Amerikaanse koelkast. 2 ruime slaapkamers en badkamer met inloop-regen-douche, wastafel en hangtoilet + voorzieningen voor wasmachine/droogkast.
Geen lift in het gebouw, weinig entiteiten, bijgevolg zeer lage gemeenschappelijke kosten.
Er is een gemeenschappelijke fietsenberging voor de appartementen. De gevel wordt nog verder afgewerkt.
Beide appartementen zijn verhuurd aan 800 euro/maand, voor het gelijkvloers is er een kandidaat na afwerking om te huren aan 1300 euro/maand.
Wenst u graag een bezoek, neem dan contact op met Hanne.
Opbrengsteigendom bestaande uit 3 entiteiten (gelijkvloers app/commercieel én 2 appartementen)
Hoogwaardige materialen in afgewerkte appartementen
Appartementen verhuurd aan beide 800 euro/maand
Kandidaat huur voor gelijkvloers na afwerking aan 1300 euro/maand
Kenmerken
5 slaapkamer(s)
3 Badkamer(s)
3 Toilet(ten)
Tuin
Terras
Riolering
Gas
Parlofoon
Telefoonbekabeling
Electriciteit
Algemene Informatie
- Totale oppervlakte
- 176 m²
- Bewoonbare opp.
- 285 m²
- Renovatiejaar
- 2023
- Terras 1
- 10 m²
- Tuin
- 30 m²
Energieprestaties
Stedenbouwkundige Informatie
- Overstromingsgevoelig
- Nee
- Elektriciteitskeuring beschikbaar
- Ja, conform
- G-score
- A
- P-score
- A
Exterieur
Gesloten bebouwing, compleet vernieuwd (optioneel gelijkvloers in huidige staat te koop) - terras gelijkvloers, terras 1e verdieping.
Ligging
Deze eigendom is op een zeer strategische ligging gepositioneerd aan het station. Parkeermogelijkheden in overvloed in de nabijheid met tal van parkings.















