Karaktervol op te frissen appt. met lateraal zeezicht
Kursaal-Oosthelling 8, 8400 Oostende
Ref. 7112663
Beschrijving
Ontdek dit karaktervolle appartement gelegen op een toplocatie in het stadscentrum van Oostende. Dit appartement biedt een unieke kans voor wie op zoek is naar een investering met potentieel, slechts enkele meters verwijderd van het strand en het levendige centrum.
Gelegen in het hart van Oostende met prachtig lateraal uitzicht op Zee en over her Kursaal, kan je genieten van de locatie terwijl je een boek leest, ideaal na ontspanning van een drukke dag. Bovendien heeft het appartement een zeer gunstig EPC B.
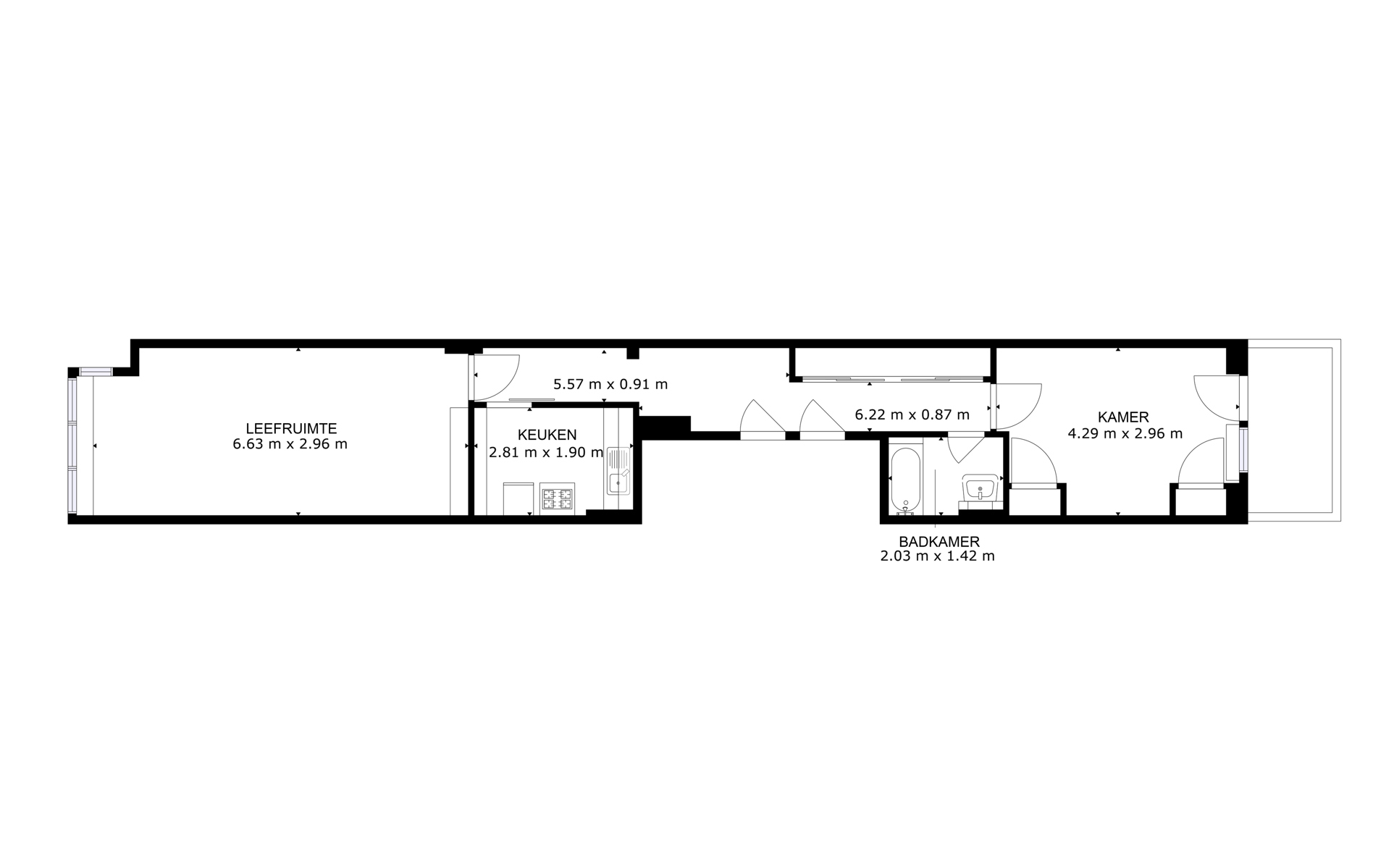
Het appartement beschikt over een ruime leefruimte, lange inkomhal, keuken, wc, badkamer en slaapkamer met ingebouwd bed en kasten. Bovendien bevindt zich in de slaapkamer een terras voor mocht je buiten wensen te zitten.
In de gemene delen beschik je over een privatieve berging.
Dit appartement biedt veel mogelijkheden als investering, tweede verblijf of voor eigen gebruik.
360° view
Kenmerken
1 slaapkamer(s)
1 Badkamer(s)
1 Toilet(ten)
Terras
Lift
Gas
Parlofoon
Telefoonbekabeling
Electriciteit
Dubbele beglazing
Algemene Informatie
- Totale oppervlakte
- 60 m²
- Bewoonbare opp.
- 60 m²
- Bouwjaar
- 1960
- Slaapkamer 1
- 12 m²
- Terras 1
- 5 m²
- Woonkamer
- 20 m²
- Badkamer
- 4 m²
Energieprestaties
- EPC categorie

- EPC
- 153 kWh/m²
- EPC referentie
- 2023117-0003029445-RES-1
Stedenbouwkundige Informatie
- Overstromingsgevoelig
- Nee
- Elektriciteitskeuring beschikbaar
- Ne
- Bouwvergunning
- Ja
- Voorkooprecht
- Nee
- Verkavelingsvergunning
- Nee
- G-score
- B
- P-score
- B
















