Renovatieproject: 3 slpk woning in het centrum van Leffinge
Groenhagestraat 20, 8432 Middelkerke Leffinge
Ref. 7218063
Beschrijving
In het hart van Leffinge, op wandelafstand van winkels, school en het dorpsplein, vind je deze volledig te renoveren woning met veel mogelijkheden. Ideaal voor wie op zoek is naar een betaalbaar renovatieproject waarin je je eigen woonideeën tot leven kunt brengen.
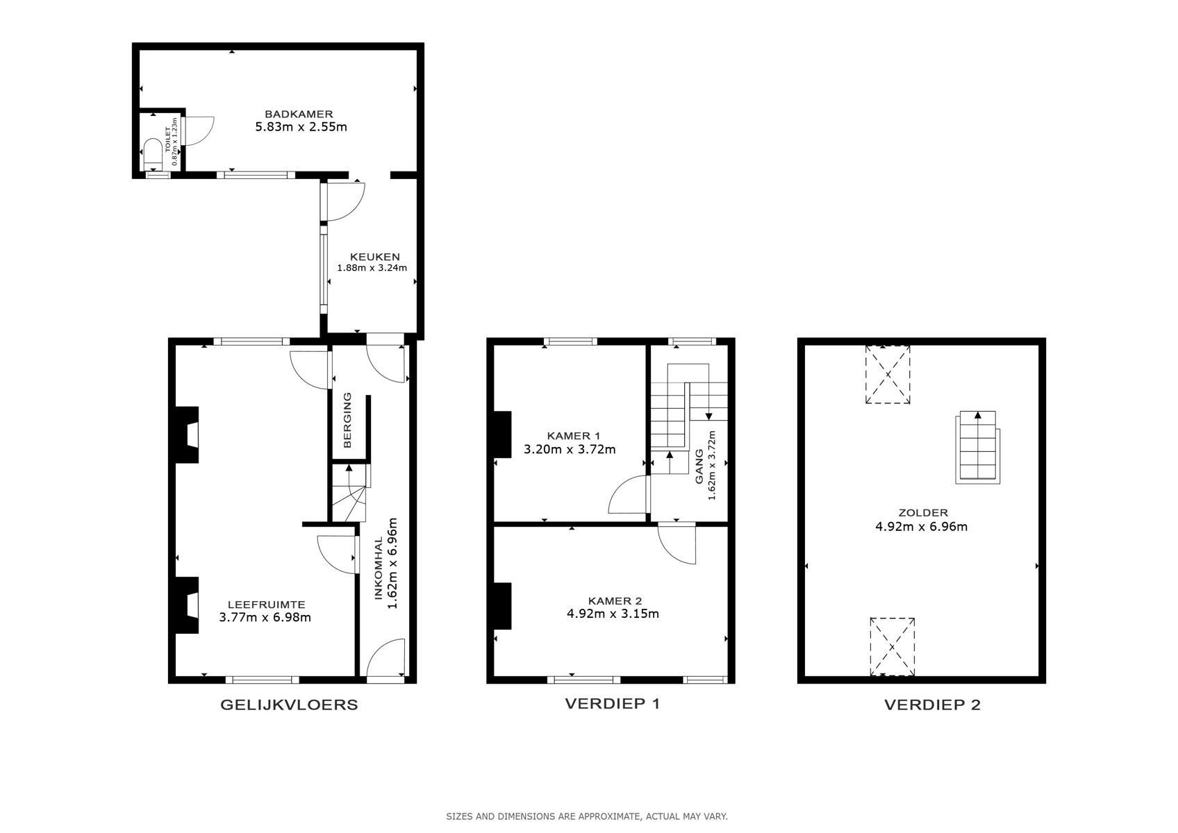
Op het gelijkvloers beschik je over een leefruimte, keuken, berging, badkamer en een afzonderlijk toilet. Achteraan is er een koer, perfect voor wie een compact buitenplekje wenst. Op de eerste verdieping bevinden zich twee ruime slaapkamers, en via de vaste trap bereik je de grote zolderverdieping, die perfect kan worden ingericht als derde slaapkamer of hobbyruimte.
Dankzij de centrale ligging in het dorpscentrum van Leffinge en de vlotte verbinding richting Middelkerke en Oostende, vormt deze woning een interessante opportuniteit voor zowel starters, investeerders als doe-het-zelvers.
Een woning met karakter en mogelijkheden, klaar voor wie een nieuw hoofdstuk wil schrijven in een authentiek dorpse omgeving.
Interesse?
Volledig te renoveren met veel potentieel
Vaste trap naar zolder (mogelijke 3e kamer)
Rustige ligging in het dorpscentrum
Compacte koer
Betaalbare instap in de vastgoedmarkt
Kenmerken
3 slaapkamer(s)
1 Badkamer(s)
1 Toilet(ten)
Terras
Riolering
Gas
Kelder
Electriciteit
Algemene Informatie
- Totale oppervlakte
- 78 m²
- Bewoonbare opp.
- 140 m²
- Bouwjaar
- 1938
- Kadastraal inkomen
- € 356
- Renovatieverplichting
- Ja
- Slaapkamer 1
- 12 m²
- Slaapkamer 2
- 15 m²
- Slaapkamer 3
- 14 m²
- Terras 1
- 10 m²
- Woonkamer
- 26 m²
- Keuken
- 6 m²
Energieprestaties
- EPC categorie

- EPC
- 1.004 kWh/m²
- EPC referentie
- 20251013-0003708521-RES-1
Stedenbouwkundige Informatie
- Overstromingsgevoelig
- Nee
- Elektriciteitskeuring beschikbaar
- Ja, conform
- Bouwvergunning
- Nee
- Voorkooprecht
- Nee
- Verkavelingsvergunning
- Nee
- Bodemattest
- Ja
- Asbestattest
- Ja, 14/10/2025
- G-score
- A
- P-score
- A
Ligging
De woning bevindt zich in het centrum van Leffinge, in de Groenhagestraat, een rustige straat op wandelafstand van het dorpsplein, winkels, school en openbaar vervoer. Dankzij de vlotte verbinding naar Middelkerke, Oostende en de kust woon je hier in een aangename dorpsomgeving met alle voorzieningen dichtbij, maar toch met een landelijk en rustig karakter.














