Dubbele inpandige garage in centrum Mechelen
Nieuwe Kapucijnenstraat 27, 2800 Mechelen
Ref. 6782969
Beschrijving
Dubbele inpandige garage in hartje Mechelen – ideaal voor investeerders of eigen gebruik!
Richtprijs: €52.000
KI: €178
Voorkooprecht: JA, van toepassing
Vaste kost: afhankelijk van uw verbruik (2022 was dit €60,90)
Gelegen aan de Nieuwe Kapucijnenstraat 27, net buiten de ring en op wandelafstand van het centrum, vindt u deze ruime, dubbele garage (3 autostaanplaatsen) op één kadastraal perceel. Perfect voor wie veilig en comfortabel wil parkeren in de stad.
De linkerzijde biedt ruimte voor 2 wagens achter elkaar, rechts is ideaal voor een stadsauto, fietsen of motoren. De garage is voorzien van elektriciteit (3 stopcontacten, 2 schakelaars), een waterkraantje én afvoeren – ideaal na een regenrit. Dankzij de leidingen van het bovengelegen appartement blijft het er steeds aangenaam warm.
Mogelijkheid om een deel te verhuren.
Aandeel: garage één: 50/1.000ste - garage twee: 50/1.000ste
Mis deze zeldzame kans in Mechelen niet – contacteer ons snel voor een bezoek!
Topligging in Mechelen
Ruime capaciteit: Goed voor 3 autostaanplaatsen
Volledig uitgerust: elektriciteit, water, afvoer
Comfort het hele jaar door: garage blijft warm
Interessante investering
Kenmerken
Parkeren
Riolering
Algemene Informatie
- Bewoonbare opp.
- 76 m²
- Bouwjaar
- 1971
Energieprestaties
Stedenbouwkundige Informatie
- Voorkooprecht
- Ja
- G-score
- B
- P-score
- B
Exterieur
De garage maakt deel uit van een verzorgd residentieel gebouw en is gelegen op één kadastraal perceel. De mede-eigendomsstructuur is transparant, met elk gedeelte goed voor 50/1.000ste aandeel. De maandelijkse vaste kosten zijn beperkt en afhankelijk van verbruik (in 2022 slechts €60,90). Een veilige en comfortabele parkeeroplossing in het hart van Mechelen.
Interieur
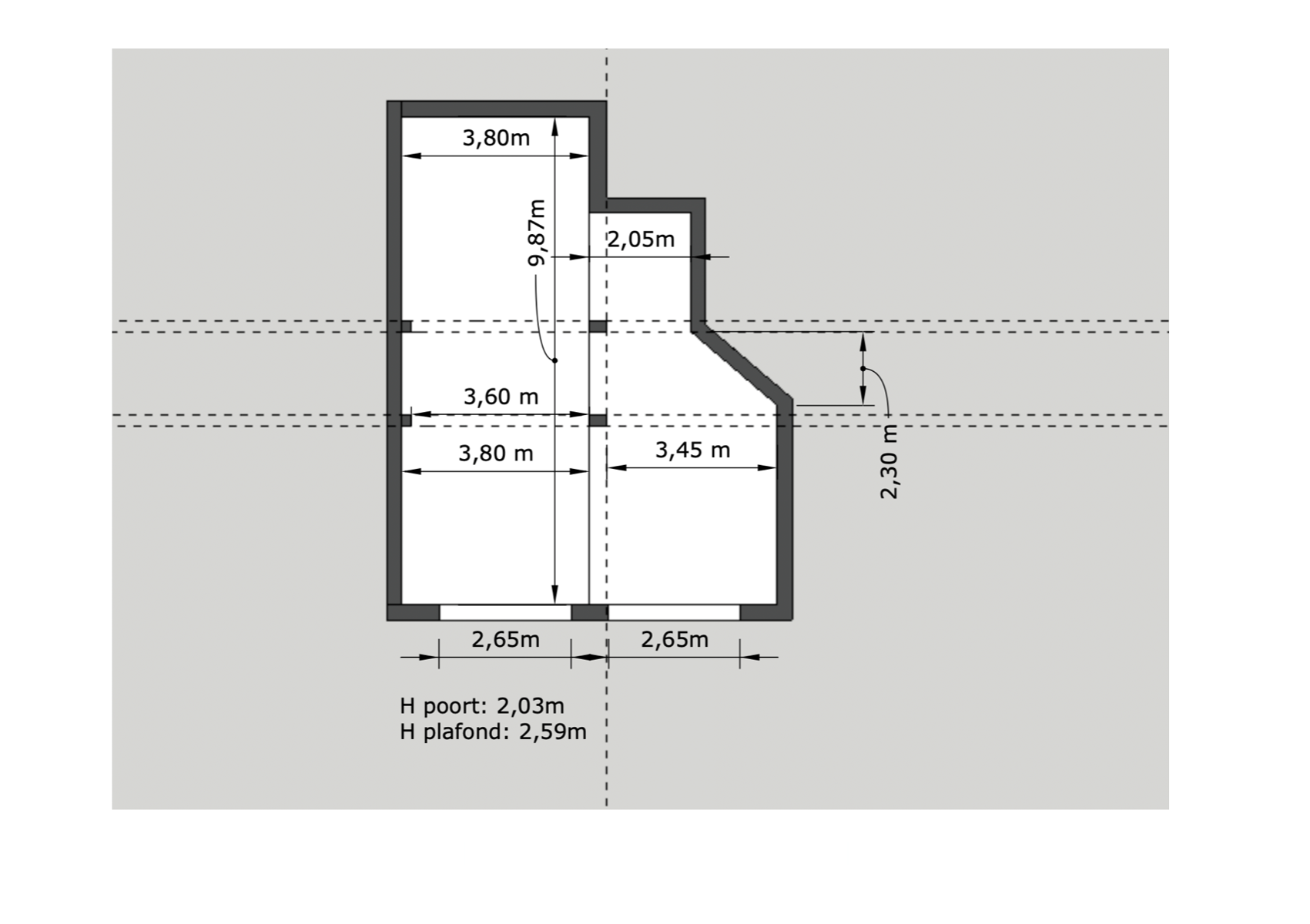
Deze dubbele inpandige garage biedt ruimte voor drie voertuigen, met links plaats voor twee wagens achter elkaar en rechts ideaal voor een stadsauto, motoren of fietsen. De garage is voorzien van elektriciteit (drie stopcontacten, twee schakelaars), een waterkraantje en afvoer, wat het uiterst praktisch maakt, bijvoorbeeld na een regenrit. Dankzij de leidingen van het bovengelegen appartement blijft het binnen aangenaam warm. Perfect voor eigen gebruik of gedeeltelijke verhuur.
Ligging
Net binnen de ring van Mechelen en op wandelafstand van het bruisende stadscentrum. De garage bevindt zich op slechts 100 meter van de iconische Brusselpoort, een herkenningspunt en toegangspoort tot het centrum. Dankzij de centrale ligging is deze garage uitstekend bereikbaar voor zowel buurtbewoners als pendelaars.









