Duplexappartement nabij het centrum van Laarne
Lepelstraat 81A, 9270 Laarne
Ref. 7211115
Beschrijving
Een instapklaar, energiezuinig duplexappartement gelegen in residentie "Laren", gelegen nabij centrum Laarne, met alles in de nabijheid aanwezig. Mooie opportuniteit voor de aankoop van een recent appartement (2008) waarbij gebruik gemaakt werd van kwaliteitsvolle materialen met dito afwerking. Ideaal voor eigen bewoning of als investering!
Contacteer me voor meer info of het plannen van een bezoek!
Kom langs om deze residentie nader te ontdekken!
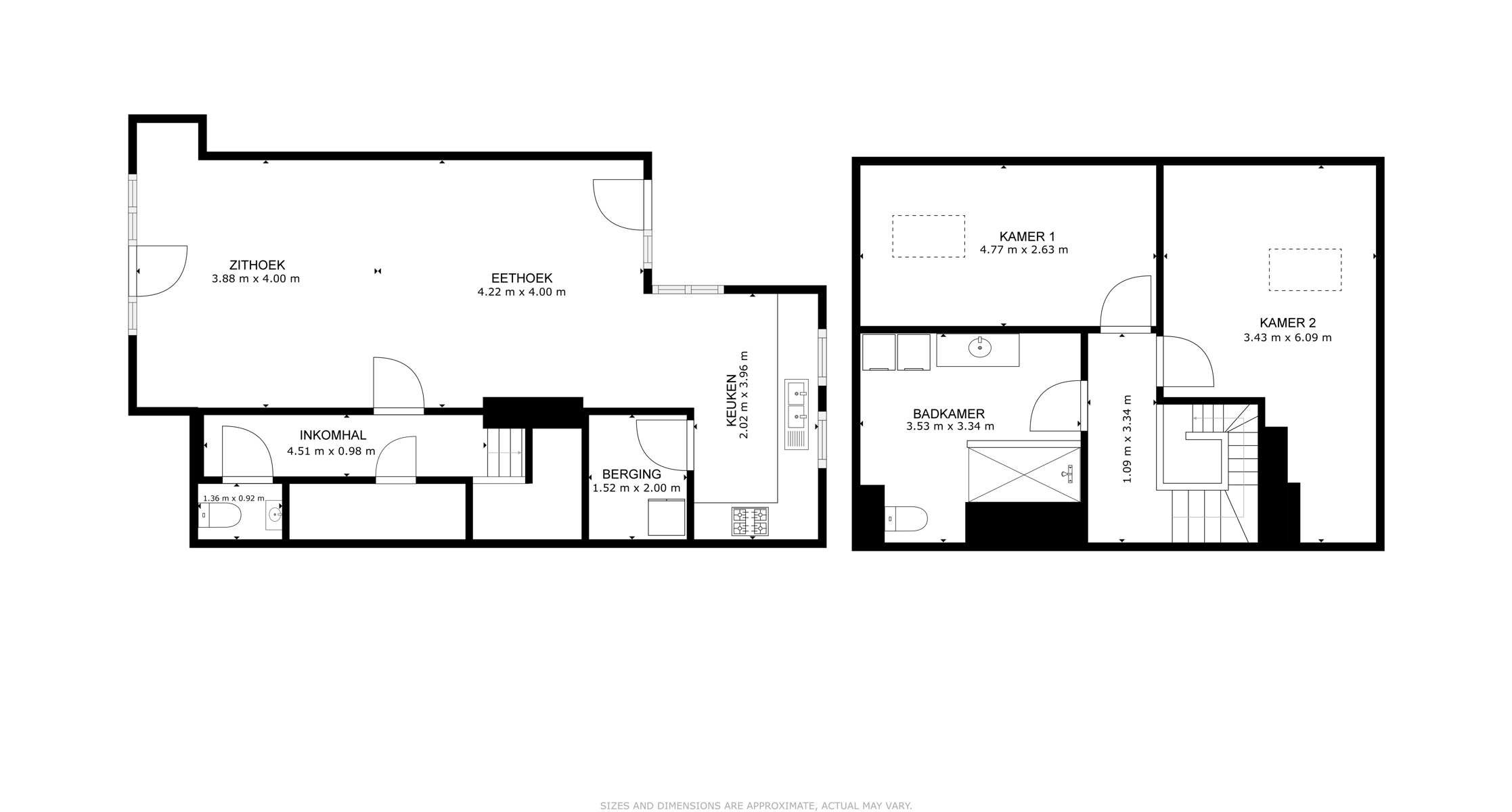
Bewoonbare oppervlakte van 104m²
Terrasoppervlakte van ca. 20m² met zuid oriëntatie
Afgesloten garagebox inbegrepen in de prijs
Nettorendement van 2,58% (kan eenvoudig geoptimaliseerd worden)
Vrij mits inachtnemening huurders
Kenmerken
2 slaapkamer(s)
1 Badkamer(s)
2 Toilet(ten)
Parkeren
Terras
Riolering
Gas
Parlofoon
Telefoonbekabeling
Electriciteit
Dubbele beglazing
Algemene Informatie
- Totale oppervlakte
- 104 m²
- Bewoonbare opp.
- 104 m²
- Bouwjaar
- 2008
- Kadastraal inkomen
- € 888
- Slaapkamer 1
- 12.5 m²
- Slaapkamer 2
- 20 m²
- Terras 1
- 20 m²
- Woonkamer
- 33 m²
- Keuken
- 8 m²
- Badkamer
- 12 m²
Energieprestaties
- EPC categorie

- EPC
- 128 kWh/m²
- EPC referentie
- 3692616
Stedenbouwkundige Informatie
- Overstromingsgevoelig
- Nee
- Elektriciteitskeuring beschikbaar
- Ja, conform
- Bouwvergunning
- Ja
- Voorkooprecht
- Nee
- Verkavelingsvergunning
- Nee
- Bodemattest
- Ja
- G-score
- A
- P-score
- B
Download documenten
Exterieur
In een recent en rustig kader kan je Residentie Laren vinden, te midden een residentiële straat ligt dit ruim, lichtrijk en energiezuinig appartement met 2 slaapkamers. Deze residentie omvat afzonderlijke garageboxen, eenvoudig en praktisch te bereiken. De residentie zelf dateert van 2008 welke voldoet aan de hedendaagse normen.
Interieur
Doorheen het appartement werd gebruik gemaakt van kwalitatieve en onderhoudsvriendelijke materialen. Alles werkt afgewerkt met oog voor detail en alle hedendaagse voorzieningen zijn aanwezig. Indeling: inkomhal met trap en gastentoilet, een open, volledig geïnstalleerde, keuken (grenzend aan een berging) met zicht op de eet- en woonkamer en met toegang tot het ruime, zonnige, terras. Via het terras is er toegang tot een opbergruimte met de technische installaties. Via de trap in de inkomhal kom je op de overloop met toegang tot twee slaapkamers en de badkamer met alle comfort. Tot slot is er op het perceel nog een afsluitbare, afzonderlijke, garage aanwezig!
Energie
EPC Klasse B - 128 kWh/m²/jaar - UC: 3692616. Centrale verwarming op aardgas met condenserende ketel. Conforme elektriciteit sedert april 2008. Het appartement voldoet aan de hedendaagse normen inzake comfort, veiligheid en bewoonbaarheid.
Ligging
Centraal doch rustig gelegen Residentie nabij de dorpskern van Laarne. Diverse handelszaken, invalswegen en supermarkt in de directe omgeving aanwezig.






















