Instapklaar appartement met garage en terras in Deinze.
Guido Gezellelaan 102, 9800 Deinze
Ref. 7222765
Beschrijving
Op zoek naar een modern, instapklaar appartement met ruimte, licht en een topligging in hartje Deinze? Dan is dit eigendom precies wat u zoekt. Dit prachtig vernieuwd appartement combineert hedendaags wooncomfort met een warme, huiselijke sfeer.
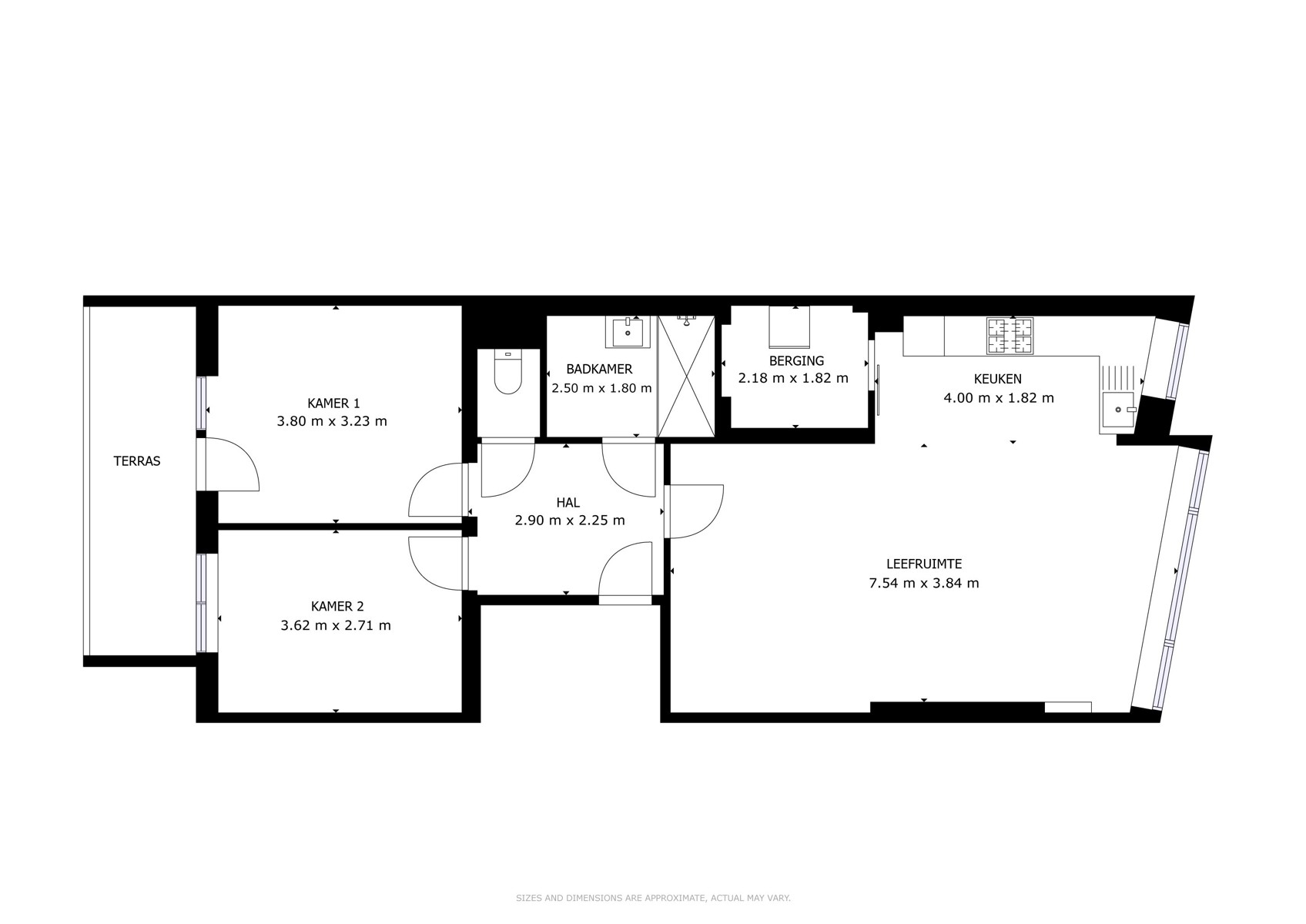
Via de lift of trap bereikt u de inkomhal met apart toilet en een moderne badkamer met inloopdouche. De lichtrijke leefruimte met eetkamer en volledig vernieuwde keuken straalt ruimte en klasse uit. Dankzij de grote ramen geniet u de hele dag door van natuurlijk licht en een open gevoel. Verder zijn er twee ruime slaapkamers met directe toegang tot het zonnig terras – een heerlijke plek om te ontspannen.
Met een gunstig EPC-label A, een ondergrondse garage inbegrepen in de prijs, en een uitstekende ligging vlak bij het station, winkels, scholen en belangrijke uitvalswegen (E17 – E40), biedt dit appartement het perfecte evenwicht tussen rust, bereikbaarheid en modern comfort.
Betaalbaar, comfortabel en energiezuinig wonen in het hart van Deinze – klaar om te verhuizen?
Klaar om dit pareltje te ontdekken? Contacteer uw vastgoedmakelaar Leen op 0478/69.84.34 of mail naar Leen@altro-vastgoed.be.
Energiezuinig wonen (EPC A) – lage kosten, toekomstgericht comfort
Lichtrijke leefruimte – met open, moderne keuken en zonnig terras
Inclusief ondergrondse garage – veilig en praktisch in het centrum
Topligging in Deinze – alles op wandelafstand: winkels, station en scholen
Kenmerken
2 slaapkamer(s)
1 Badkamer(s)
1 Toilet(ten)
Parkeren
Terras
Lift
Riolering
Gas
Parlofoon
Telefoonbekabeling
Kelder
Electriciteit
Dubbele beglazing
Algemene Informatie
- Totale oppervlakte
- 82 m²
- Bewoonbare opp.
- 82 m²
- Bouwjaar
- 1968
- Renovatiejaar
- 2020
- Slaapkamer 1
- 12 m²
- Slaapkamer 2
- 10 m²
- Terras 1
- 4 m²
- Woonkamer
- 29 m²
- Keuken
- 10 m²
- Badkamer
- 5 m²
Energieprestaties
- EPC categorie

- EPC
- 90 kWh/m²
- EPC referentie
- 20230403-0002856925-RES-1
Stedenbouwkundige Informatie
- Overstromingsgevoelig
- Nee
- Elektriciteitskeuring beschikbaar
- Ja, conform
- Bouwvergunning
- Ja
- Voorkooprecht
- Nee
- Verkavelingsvergunning
- Ja
- Bodemattest
- Ja
- Asbestattest
- Ja, 03/10/2023
- G-score
- A
- P-score
- A
Exterieur
De residentie is goed onderhouden en voorzien van een ondergrondse garage met directe toegang tot het gebouw. Het zuidoostgericht terras is ideaal om in alle rust te genieten van de ochtendzon. Het geheel ademt kwaliteit, rust en verzorging uit.
Interieur
Het appartement straalt ruimte en licht uit dankzij de doordachte indeling en grote raampartijen. De moderne leefruimte met vernieuwde keuken en badkamer biedt een eigentijdse en stijlvolle uitstraling. Twee ruime slaapkamers en een gezellig terras maken het wooncomfort compleet.
Energie
Met een EPC-label A is dit appartement bijzonder energiezuinig en toekomstgericht. Dankzij de uitstekende isolatie en moderne technieken geniet u van lage energiekosten en optimaal wooncomfort.
Ligging
Gelegen in het bruisende centrum van Deinze, op wandelafstand van winkels, scholen, station en openbaar vervoer. De nabijheid van de E17 en E40 zorgt bovendien voor een vlotte verbinding richting Gent, Kortrijk en de kust. Kortom: de ideale ligging voor wie centraal én rustig wil wonen.
















