Exclusief en riant wonen met zicht op de oude Leiearm
Kortrijkstraat 33, 9800 Deinze
Ref. 6957297
Beschrijving
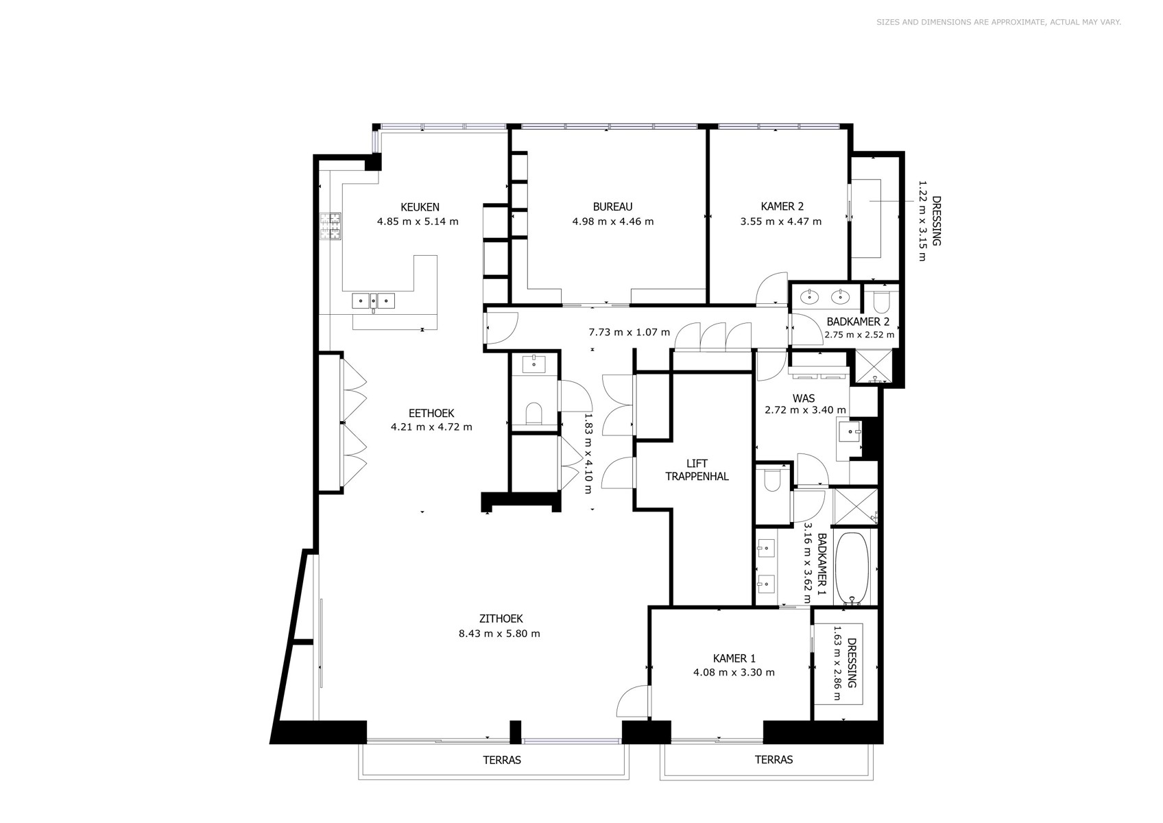
Ontdek dit unieke luxe appartement van maar liefst 218 m² op de volledige derde verdieping, met een adembenemend uitzicht over de schilderachtige oude Leiearm. Deze uitzonderlijke woonst combineert ruimte, licht en verfijning op een manier die zelden te vinden is.
De riante leefruimte baadt in het zonlicht en sluit naadloos aan op een volledig geïnstalleerde open leefkeuken. De twee terrassen aan de leefruimte laten je elk moment van de dag genieten van zon en uitzicht.
Er zijn drie volwaardige slaapkamers waarvan twee met walk-in dressings en twee stijlvolle badkamers waarvan 1 met ligbad. Daarnaast is er een aparte ingerichte wasruimte en zijn er drie afzonderlijke toiletten.
Overal in het appartement werd gekozen voor hoogwaardige materialen: parketvloeren, maatwerk inbouwkasten en een afwerking tot in het kleinste detail.
Bij de verkoop optioneel bij te kopen: twee ruime garageboxen (in zijn geheel of afzonderlijk, € 30.000/stuk) én inbegrepen in de verkoopprijs: een zeer grote kelderberging.
Een appartement van dit formaat en deze klasse is een zeldzame vondst.
Exclusiviteit met zicht. Ruimte met stijl.
Interesse in deze uitzonderlijke eigendom?
Uitzonderlijk woonvolume van 218 m² met 3 slaapkamers, 2 badkamers en 2 dressings.
Topafwerking met hoogwaardige materialen, parketvloeren, maatwerk en verborgen bar.
Volledige privacy & comfort dankzij aparte wasruimte, vestiairekast en 3 toiletten.
Adembenemend uitzicht over de oude Leiearm vanuit de zonrijke leefruimte en terrassen.
Optioneel bij de kopen: 2 ruime garageboxen (€ 30.000/stuk) én een zeer grote kelderberging (inbegrepen in de prijs).
360° view
Kenmerken
3 slaapkamer(s)
2 Badkamer(s)
3 Toilet(ten)
Parkeren
Terras
Klimaatcontrole
Lift
Riolering
Gas
Telefoonbekabeling
Kelder
Electriciteit
Dubbele beglazing
Algemene Informatie
- Totale oppervlakte
- 233 m²
- Bewoonbare opp.
- 218 m²
- Bouwjaar
- 2002
- Slaapkamer 1
- 20 m²
- Slaapkamer 2
- 16 m²
- Slaapkamer 3
- 15 m²
- Terras 1
- 15 m²
- Woonkamer
- 54 m²
- Keuken
- 41 m²
- Badkamer
- 15 m²
- Bureau
- 20 m²
Energieprestaties
- EPC categorie

- EPC
- 94 kWh/m²
- EPC referentie
- Certificaat-20250122-0003511567-RES-1
Stedenbouwkundige Informatie
- Overstromingsgevoelig
- Nee
- Elektriciteitskeuring beschikbaar
- Ja, conform
- Bouwvergunning
- Ja
- Voorkooprecht
- Nee
- Verkavelingsvergunning
- Nee
- Bodemattest
- Ja
- G-score
- D

- P-score
- D

Ligging
Gelegen in het centrum van Deinze, nabij alle faciliteiten die een centrum kan bieden. Op wandelafstand van het station, de Brielmeersen, de Markt,... kortom... zeer goed gelegen met een uitzonderlijk uitzicht op de Oude Leie arm.

























