Nieuwbouwwoning in rust en comfort nabij de Leie - LOT 2
Dr.Adriaan Martenslaan 36, 9800 Deinze Astene
Ref. 7295720
Beschrijving
Waar wonen genieten wordt…
In een rustige, residentiële wijk in Astene, op wandelafstand van de Leie en het Astene Sas, ontstaat Project ’T Sas: een kleinschalig en doordacht nieuwbouwproject op één van de laatste beschikbare restpercelen in deze gegeerde buurt. Een plek waar rust, natuur en bereikbaarheid vanzelf samenkomen.
Deze hedendaagse woningen combineren tijdloze architectuur met energiezuinige technieken die klaar zijn voor de toekomst. Denk aan vloerverwarming en -koeling via een lucht-waterwarmtepomp, doorgedreven isolatie, ventilatiesysteem type D en de mogelijkheid tot zonnepanelen. Comfort vandaag, lage energiekosten morgen.
Binnen bepaalt u zelf het verhaal. De plannen vormen een flexibel voorontwerp dat samen met de architect kan worden afgestemd op uw levensstijl. Afwerkingsbudgetten laten u toe uw woning écht eigen te maken, met aandacht voor kwaliteit, licht en ruimte. Ook buiten wordt reeds een nette basis voorzien, zodat u slechts nog hoeft te genieten.
De ligging is een absolute troef: nabij het centrum van Deinze, scholen, winkels, sportclubs en station, én met een vlotte verbinding naar Gent en de E17. Ideaal voor wie rustig wil wonen zonder in te boeten aan bereikbaarheid.
Project ’T Sas nodigt u uit om niet zomaar een woning te kopen, maar een thuis te creëren.
Een kennismakend gesprek volstaat vaak om te voelen of dit uw volgende stap kan zijn.
Interesse?
AAA-ligging in een rustige, residentiële wijk nabij de Leie en Astene Sas
Vlotte bereikbaarheid naar Deinze, Gent en E17, dichtbij scholen, winkels en station
Energiezuinige nieuwbouwwoning met warmtepomp, vloerverwarming en toekomstgerichte technieken
Flexibele indeling en personaliseerbare afwerking onder begeleiding van architect en interieuradviseur
Kleinschalig project op één van de laatste restpercelen in de wijk
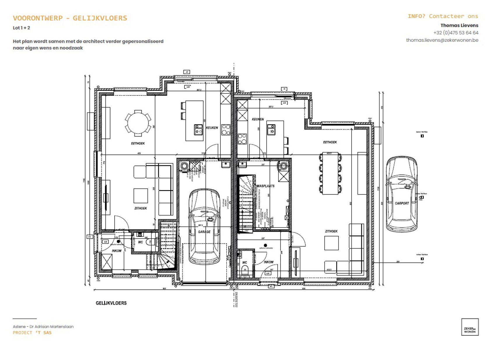
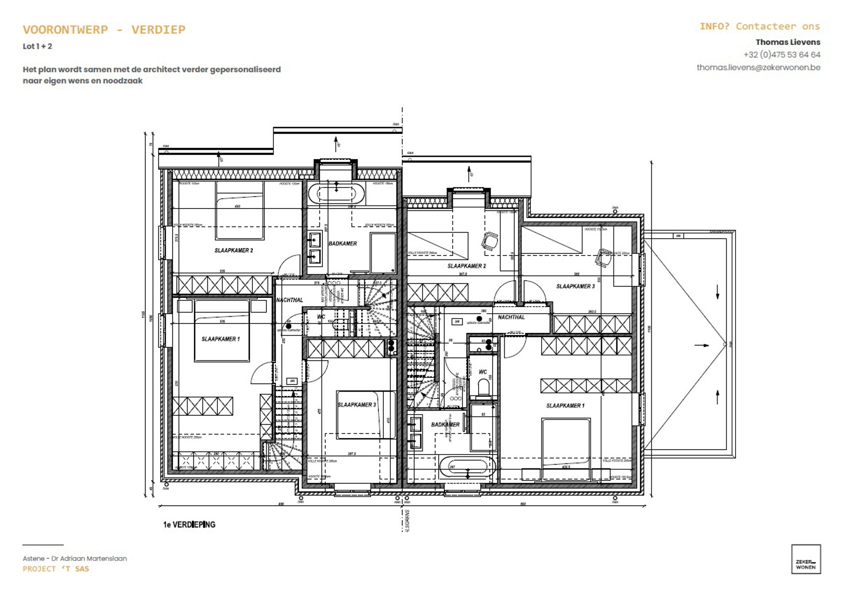
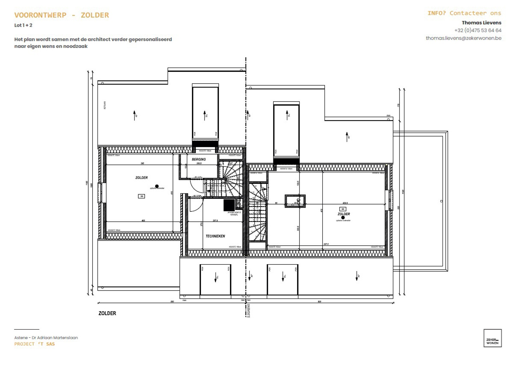
Kenmerken
3 slaapkamer(s)
1 Badkamer(s)
2 Toilet(ten)
Zonnepanelen
Tuin
Parkeren
Terras
Riolering
Electriciteit
Dubbele beglazing
Algemene Informatie
- Totale oppervlakte
- 304 m²
- Bewoonbare opp.
- 195 m²
- Bouwjaar
- 2026
- Slaapkamer 1
- 11 m²
- Slaapkamer 2
- 13 m²
- Slaapkamer 3
- 21 m²
- Terras 1
- 15 m²
- Woonkamer
- 36 m²
- Keuken
- 13 m²
- Tuin
- 304 m²
Energieprestaties
- EPC referentie
- NIEUWBOUW
Stedenbouwkundige Informatie
- Overstromingsgevoelig
- Nee
- Elektriciteitskeuring beschikbaar
- Ja, conform
- Bouwvergunning
- Ja
- Voorkooprecht
- Nee
- Verkavelingsvergunning
- Ja
- Bodemattest
- Ja
- G-score
- A
- P-score
- A
Download documenten
Ligging
Gelegen in een rustige en residentiële buurt van Astene, op wandelafstand van de Leie en het Astene Sas. De woning combineert groen en ontspanning met een vlotte bereikbaarheid naar het centrum van Deinze, scholen, winkels, station en de E17 richting Gent. Een ideale ligging voor wie graag rustig woont zonder aan mobiliteit in te boeten.













