Zeer ruime te renoveren burgerwoning in Brugge!
Jacob van Maerlantstraat 1, 8000 Brugge
Ref. 7236072
Beschrijving
Ontdek deze statige en bijzonder ruime burgerwoning aan de rand van Brugge. Een unieke woning vol karakter en authentieke charme. De klassieke houten vloeren, hoge plafonds, een ingebouwde speksteenkachel en klassieke houten trap ademen geschiedenis en geven het pand een warme uitstraling vol geschiedenis.
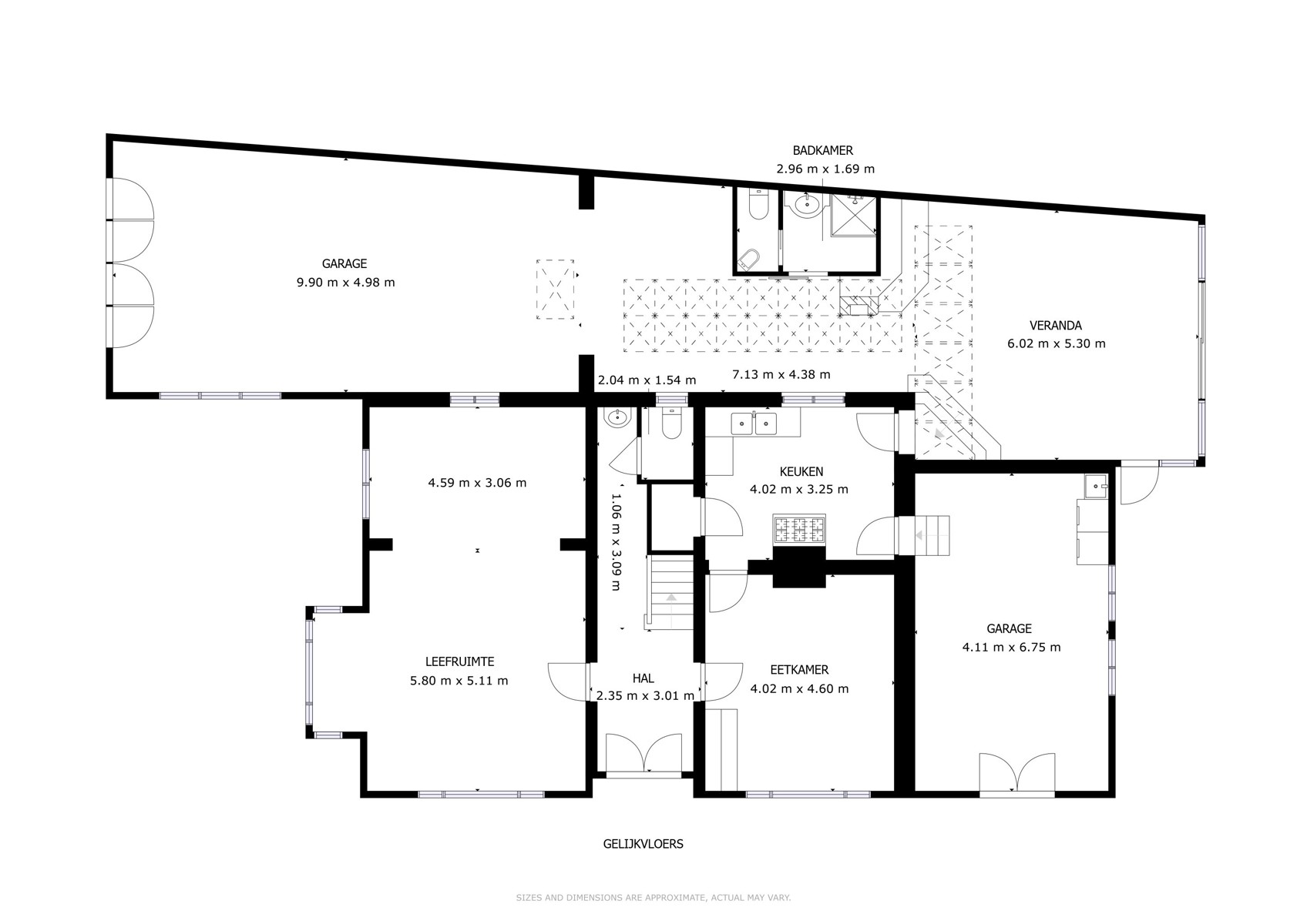
Met vier volwaardige slaapkamers, een aparte bureauruimte, twee badkamers en een royale leefruimte biedt deze woning alle ruimte voor wie op zoek is naar comfort en veelzijdigheid. Daarnaast beschikt de woning een praktische tuin.
Met twee grote inpandige garages, waarvan voor één de benaming magazijn beter past, beschikt deze eigendom over parkeerplaats voor meerdere wagens of extra stockage mogelijkheden, alsook in de kelder of op de ruime zolder.
Hoewel de woning renovatie vereist (EPC-label F), vormt dit een unieke kans om deze karaktervolle villa naar eigen smaak en moderne standaarden te transformeren. De elektriciteit is niet conform en het asbestattest wijst op de aanwezigheid van asbest — maar met de juiste ingrepen bouwt u hier aan een toekomstgerichte thuis met een ziel en veel karakter.
Alle relevante documenten, waaronder het elektriciteitsverslag, asbestattest en EPC, zijn te downloaden via de website van Altro Vastgoed.
Bent u op zoek naar een ruime, charmante woning met potentieel op een bereikbare locatie in Brugge? Dan is dit het ideale renovatieproject voor u.
Kenmerken
4 slaapkamer(s)
1 Badkamer(s)
3 Toilet(ten)
Tuin
Parkeren
Terras
Electriciteit
Dubbele beglazing
Algemene Informatie
- Totale oppervlakte
- 450 m²
- Bewoonbare opp.
- 364 m²
- Bouwjaar
- 1952
- Kadastraal inkomen
- € 1.492
- Renovatieverplichting
- Ja
- Slaapkamer 1
- 23 m²
- Slaapkamer 2
- 14 m²
- Slaapkamer 3
- 13.8 m²
- Slaapkamer 4
- 27 m²
- Terras 1
- 20 m²
- Woonkamer
- 40.5 m²
- Eetkamer
- 18.49 m²
- Keuken
- 13 m²
- Bureau
- 6.15 m²
- Tuin
- 450 m²
Energieprestaties
- EPC categorie

- EPC
- 936 kWh/m²
- EPC referentie
- 20250409-0003573714-RES-1
Stedenbouwkundige Informatie
- Overstromingsgevoelig
- Nee
- Elektriciteitskeuring beschikbaar
- Ja, niet conform
- Bouwvergunning
- Ja
- Voorkooprecht
- Nee
- Verkavelingsvergunning
- Nee
- Bodemattest
- Ja
- Asbestattest
- Ja, 10/04/2025
- G-score
- A
- P-score
- A























