Ruime 3 slpk. duplex met waterzicht nabij centrum Brugge
Bevrijdingslaan 8, 8000 Brugge
Ref. 7219989
Beschrijving
Ontdek dit ruime duplex-appartement met drie slaapkamers in Residentie Cypres, gelegen aan de Bevrijdingslaan 8 te Brugge. Op de 4de en hoogste verdieping geniet je hier van een prachtig uitzicht op het water dat de Vesten met de Steenkaai verbindt – een groene, rustige omgeving op wandelafstand van het centrum.
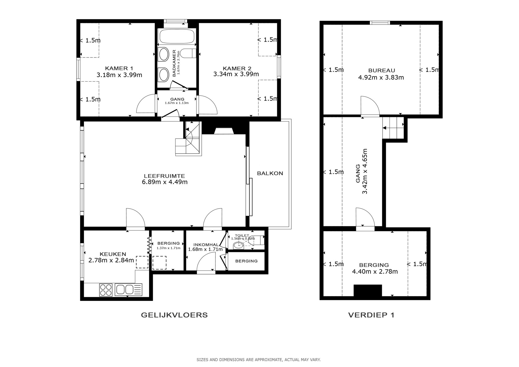
De inkomhal met afzonderlijk gastentoilet leidt naar een lichtrijke leefruimte met grote raampartijen en een rustgevend zicht op het groen en het water. De afzonderlijke keuken met berging biedt extra praktisch comfort. Verder op dit niveau: twee ruime slaapkamers en een badkamer met ligbad, dubbele wastafel en toilet.
De bovenverdieping is bereikbaar via een vaste trap vanuit de leefruimte en beschikt over een royale overloop met ingemaakte kasten, een derde slaapkamer en een grote berging.
Een ruime kelderberging is inbegrepen in de prijs; een garage kan optioneel (€ 30.000) worden aangekocht.
Een uitzonderlijk rustig gelegen duplex met veel ruimte, licht en een prachtig uitzicht — ideaal voor wie comfortabel wil wonen vlak bij het centrum én de expresweg.
Interesse?
Rustige ligging met zicht op het water
Ruim duplexappartement met 3 slaapkamers
Lichtrijke leefruimte met grote ramen
Praktische indeling met veel bergruimte
Nabij centrum en expresweg
360° view
Kenmerken
3 slaapkamer(s)
1 Badkamer(s)
2 Toilet(ten)
Parkeren
Terras
Lift
Riolering
Gas
Telefoonbekabeling
Kelder
Electriciteit
Dubbele beglazing
Algemene Informatie
- Totale oppervlakte
- 114 m²
- Bewoonbare opp.
- 109 m²
- Bouwjaar
- 1980
- Kadastraal inkomen
- € 1.023
- Renovatieverplichting
- Ja
- Slaapkamer 1
- 13 m²
- Slaapkamer 2
- 13 m²
- Slaapkamer 3
- 19 m²
- Terras 1
- 5 m²
- Woonkamer
- 31 m²
- Keuken
- 8 m²
- Badkamer
- 5 m²
- Bureau
- 13 m²
Energieprestaties
- EPC categorie

- EPC
- 411 kWh/m²
- EPC referentie
- 20251017-0003712549-RES-1
Stedenbouwkundige Informatie
- Overstromingsgevoelig
- Nee
- Elektriciteitskeuring beschikbaar
- Ja, niet conform
- Bouwvergunning
- Ja
- Voorkooprecht
- Nee
- Verkavelingsvergunning
- Nee
- Bodemattest
- Ja
- Asbestattest
- Ja, 20/10/2025
- G-score
- B
- P-score
- B
Download documenten
Ligging
De residentie Cypres geniet een uitstekende ligging aan de Bevrijdingslaan te Brugge, op een boogscheut van het historische centrum. Het appartement kijkt uit op het rustige water tussen de Vesten en de Steenkaai, omringd door groen en wandelpaden. Hier woon je op een vlot bereikbare locatie, met directe aansluiting op de expresweg richting kust en E40, terwijl winkels, openbaar vervoer en scholen zich op wandelafstand bevinden. Een ideale combinatie van rust, natuur en bereikbaarheid vlak bij het bruisende hart van Brugge.






















