Karaktervolle stadswoning met 5 slpk. en kleine zw-tuin
Maagdenstraat 80, 8000 Brugge
Ref. 7219950
Beschrijving
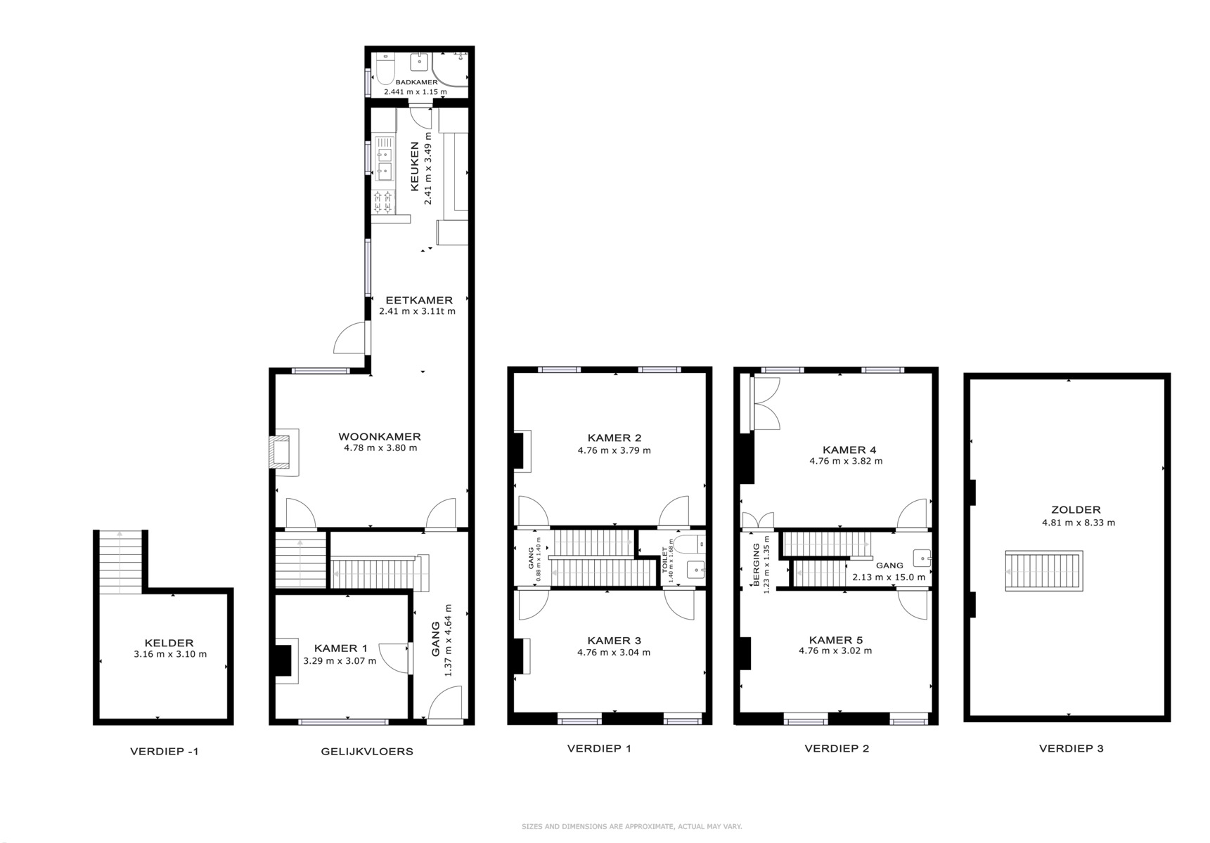
Op zoek naar een charmante woning in hartje Brugge, waar ruimte, licht en functionaliteit samenkomen? Deze verrassend ruime woning – verdeeld over vier volwaardige verdiepingen én een kelder – combineert comfort met gezelligheid van een authentieke stadswoning.
Op het gelijkvloers vind je een bureau of extra slaapkamer, een lichtrijke leefruimte met open keuken en aansluitend een badkamer met douche, wastafel en toilet. De kleine stadstuin met zuidwestoriëntatie biedt een heerlijk plekje om tot rust te komen.
De eerste en tweede verdieping zijn telkens ingedeeld met twee slaapkamers en een praktisch sanitair gedeelte ertussen. Helemaal boven tref je een ruime zolderverdieping met vaste trap, perfect geschikt als extra slaapkamer, hobbyruimte of atelier.
Met een gunstig EPC-label C, conforme elektriciteit en de centrale ligging op wandelafstand van zowel het historisch centrum als het station, is dit een woning die zowel gezinnen, investeerders als stedelijke levensgenieters zal aanspreken.
Wie op zoek is naar een ruime en instapklare stadswoning met karakter en potentieel, zal hier ongetwijfeld zijn thuisgevoel vinden.
Interesse?
5 volwaardige slaapkamers + bureau
Gunstig EPC C & conforme elektriciteit
Centrale ligging nabij station en binnenstad
Zuidwestgerichte tuin
Ruime zolder met vaste trap
Kenmerken
5 slaapkamer(s)
1 Badkamer(s)
1 Toilet(ten)
Tuin
Terras
Riolering
Gas
Telefoonbekabeling
Kelder
Electriciteit
Dubbele beglazing
Algemene Informatie
- Totale oppervlakte
- 110 m²
- Bewoonbare opp.
- 179 m²
- Bouwjaar
- 1887
- Kadastraal inkomen
- € 480
- Slaapkamer 1
- 10 m²
- Slaapkamer 2
- 18 m²
- Slaapkamer 3
- 14 m²
- Slaapkamer 4
- 18 m²
- Slaapkamer 5
- 14 m²
- Terras 1
- 10 m²
- Woonkamer
- 25 m²
- Keuken
- 9 m²
- Bureau
- 10 m²
- Tuin
- 110 m²
Energieprestaties
- EPC categorie

- EPC
- 264 kWh/m²
- EPC referentie
- 20220111-0002019370-RES-1
Stedenbouwkundige Informatie
- Overstromingsgevoelig
- Nee
- Elektriciteitskeuring beschikbaar
- Ja, conform
- Bouwvergunning
- Ja
- Voorkooprecht
- Nee
- Verkavelingsvergunning
- Nee
- Bodemattest
- Ja
- Asbestattest
- Ja, 22/10/2025
- G-score
- A
- P-score
- A
Ligging
De woning bevindt zich in de Maagdenstraat, een rustige zijstraat op wandelafstand van zowel het historisch centrum van Brugge als het station. Dankzij deze centrale ligging geniet je van alle troeven van de stad: winkels, scholen, openbaar vervoer en gezellige eetadresjes bevinden zich op een steenworp. Tegelijk woon je er in een aangename en verkeersluwe straat, ideaal voor wie de stad wil beleven, maar toch houdt van rust en comfort.
























