Energiezuinige en gerenoveerde bel étage nabij Fort Lapin
Koetelwijk 22, 8000 Brugge
Ref. 7182401
Beschrijving
Deze volledig gerenoveerde bel-étage woning (2025) combineert ruimte, comfort en een zonnige tuin met EPC-label B. Ideaal voor wie op zoek is naar een instapklare gezinswoning op een centrale locatie.
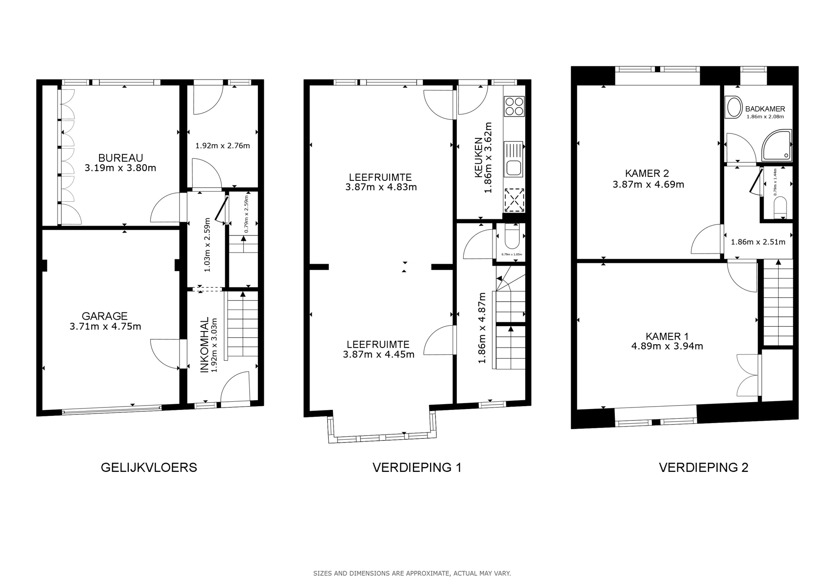
De woning telt 4 verdiepingen en biedt een doordachte indeling:
Gelijkvloers: ruime garage, extra kamer (slaapkamer/bureau), praktische berging onder de trap en afzonderlijke berging/wasruimte.
1ste verdieping: lichtrijke leefruimte met aansluitend een afzonderlijke keuken met een aangenaam terras met zicht op de tuin en een gastentoilet in de traphal.
2de verdieping: twee volwaardige slaapkamers, een geinstalleerde badkamer en een afzonderlijk toilet in de traphal.
3de verdieping: afgewerkte zolder die, mits vaste trap, perfect kan dienen als vierde slaapkamer of hobbyruimte.
Buiten geniet je op het gelijkvloers van een overdekt terras en een zonnige, zuidgerichte tuin met handige tuinberging.
Dankzij de recente renovatie is dit een energiezuinige, moderne woning die klaar is voor haar eerste bewoners.
Interesse?
Volledig gerenoveerd in 2025 – instapklaar en modern afgewerkt.
Energiezuinig (EPC-label B) – lage verbruikskosten.
Ruim en flexibel – 4 slaapkamers mogelijk (optimalisatie afgewerkte zolder).
Zuidgerichte tuin met 2 terrassen – optimaal genieten van zon en buitenruimte.
Handige indeling – garage, aparte berging, wasplaats en extra kamer/bureau op het gelijkvloers.
360° view
Kenmerken
3 slaapkamer(s)
1 Badkamer(s)
2 Toilet(ten)
Parkeren
Terras
Riolering
Gas
Telefoonbekabeling
Electriciteit
Dubbele beglazing
Algemene Informatie
- Totale oppervlakte
- 199 m²
- Bewoonbare opp.
- 171 m²
- Bouwjaar
- 1955
- Renovatiejaar
- 2025
- Kadastraal inkomen
- € 587
- Slaapkamer 1
- 18 m²
- Slaapkamer 2
- 19 m²
- Slaapkamer 3
- 12 m²
- Terras 1
- 20 m²
- Woonkamer
- 36 m²
- Keuken
- 7 m²
- Bureau
- 12 m²
Energieprestaties
- EPC categorie

- EPC
- 142 kWh/m²
- EPC referentie
- 003649857
Stedenbouwkundige Informatie
- Overstromingsgevoelig
- Nee
- Elektriciteitskeuring beschikbaar
- Ja, conform
- Bouwvergunning
- Ja
- Voorkooprecht
- Nee
- Verkavelingsvergunning
- Nee
- Asbestattest
- Ja
- G-score
- A
- P-score
- A
Ligging
De woning is gelegen in een rustige straat in Brugge, met een vlotte verbinding naar het historisch centrum, winkels en scholen. Dankzij de nabijheid van in- en uitvalswegen ben je snel onderweg richting kust of snelwegen. Ook het openbaar vervoer bevindt zich op wandelafstand, wat de bereikbaarheid nog aantrekkelijker maakt. Kortom: een centrale, maar toch rustige ligging die ideaal is voor gezinnen of wie comfort en bereikbaarheid wil combineren.























