Uitzonderlijke opportuniteit op zichtlocatie!
Koning Albert I-laan 201, 8200 Brugge Sint-Michiels
Ref. 7236057
Beschrijving
Op zoek naar een kantoor/woning op een uitzonderlijke en bereikbare zichtlocatie? Dit onmiddellijk beschikbare kantoorgebouw/woning aan de Koning Albert I-laan 201 in Sint-Michiels biedt 308 m² bruikbare vloeroppervlakte en tal van troeven.
Voor deze eigendom ben je beperkt tot 100 m² kantoor/commerciële ruimte omwille van de ligging in woongebied.
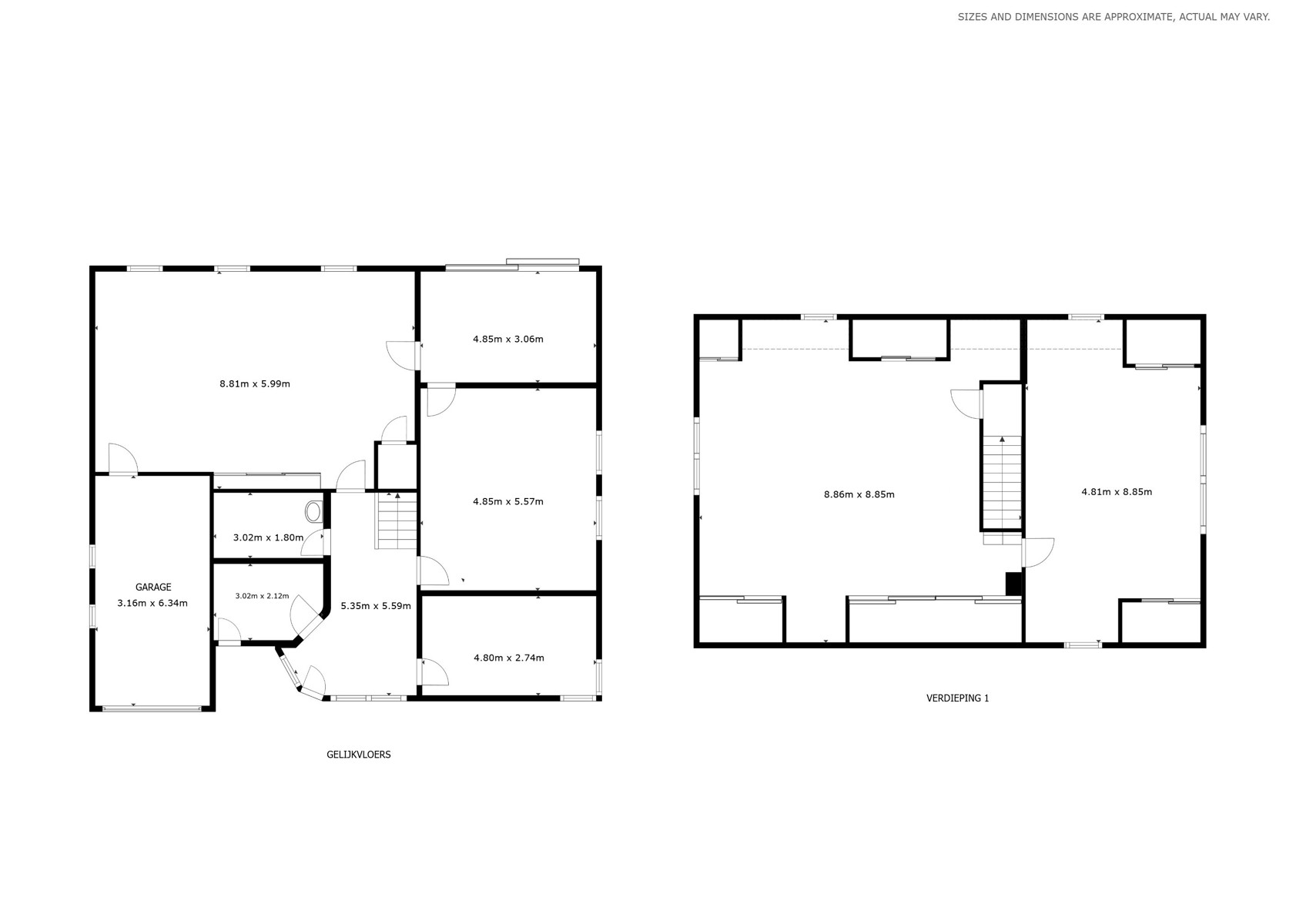
Indeling:
Ruime inkom met 2 wachtruimtes
2 aparte bureaus + zeer ruime bureelruimte voor meerdere werkplekken
Sanitair blok (M/V)
Zeer ruime archiefruimte op de 1e verdieping
Afzonderlijke garage en zolder voor extra stockage
Dankzij de grote raampartijen geniet u van een lichte en aangename werkomgeving.
Parkeren? Geen probleem! Er zijn 3 privéparkeerplaatsen vooraan en extra parkeermogelijkheden in de directe omgeving, alsook een grote inpandige garage.
Interesse? Mis deze unieke kans niet en plan vandaag nog een bezichtiging!
Kenmerken
4 slaapkamer(s)
2 Toilet(ten)
Tuin
Parkeren
Terras
Klimaatcontrole
Riolering
Gas
Telefoonbekabeling
Electriciteit
Dubbele beglazing
Algemene Informatie
- Totale oppervlakte
- 458 m²
- Bewoonbare opp.
- 308 m²
- Bouwjaar
- 1993
- Kadastraal inkomen
- € 1.482
- Slaapkamer 1
- 0 m²
- Slaapkamer 2
- 0 m²
- Slaapkamer 3
- 0 m²
- Slaapkamer 4
- 0 m²
- Terras 1
- 12 m²
- Bureau
- 308 m²
- Tuin
- 458 m²
Energieprestaties
- EPC categorie

- EPC
- 245 kWh/m²
- EPC referentie
- Certificaat-20250318-0003460897-RES-4-R
Stedenbouwkundige Informatie
- Overstromingsgevoelig
- Nee
- Elektriciteitskeuring beschikbaar
- Ja, niet conform
- Bouwvergunning
- Ja
- Voorkooprecht
- Nee
- Verkavelingsvergunning
- Ja
- Bodemattest
- Ja
- Asbestattest
- Ja, 30/11/2024
- G-score
- A
- P-score
- B


















