Instapklare woning met tuin in rustige wijk Aartselaar
Rozenlaan 11, 2630 Aartselaar
Ref. 7197279
Beschrijving
In een rustige, kindvriendelijke wijk van Aartselaar, zonder doorgaand verkeer, bevindt zich deze vrijstaande woning met tal van troeven.
Gebouwd in 1990 en zorgvuldig onderhouden en vernieuwd, combineert ze comfort, ruimte en een gunstige ligging.
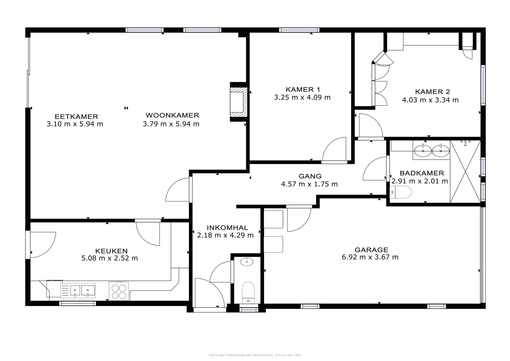
Bij het binnenkomen ervaart u meteen de lichte en ruime leefruimte. De open indeling zorgt voor een aangename connectie tussen de leefruimte, eetkamer en keuken. Dankzij de grote ramen geniet u de hele dag door van natuurlijk licht en een mooi uitzicht op de tuin.
De woning beschikt over twee ruime slaapkamers en een badkamer met douche, perfect ingedeeld voor een klein gezin, een koppel of wie graag gelijkvloers wil wonen. Op de grote zolder zijn er bovendien nog tal van uitbreidingsmogelijkheden: extra slaapkamers, een hobbyruimte of een bureau.
De ruime garage biedt plaats voor wagen, fietsen en extra bergruimte. Buiten geniet u van een aangename tuin met terras en groen.
Deze woning is ook technisch helemaal mee met haar tijd: EPC-label C, verwarming via warmtepomp, Asbestvrij – zorgeloos wonen zonder renovatiezorgen
De ligging is bovendien ideaal: een vlotte verbinding via de A12 brengt u in geen tijd naar Antwerpen of Brussel, terwijl winkels, scholen en openbaar vervoer op korte afstand liggen.
Kortom: deze woning in Aartselaar biedt de perfecte balans tussen rustig wonen, moderne voorzieningen en een centrale ligging.
Een instapklare woning met toekomstmogelijkheden – klaar om er uw nieuwe thuis van te maken.
Kenmerken
2 slaapkamer(s)
1 Badkamer(s)
2 Toilet(ten)
Tuin
Parkeren
Terras
Dubbele beglazing
Algemene Informatie
- Totale oppervlakte
- 434 m²
- Bewoonbare opp.
- 240 m²
- Bouwjaar
- 1990
- Slaapkamer 1
- 13.3 m²
- Slaapkamer 2
- 13.5 m²
- Woonkamer
- 41 m²
- Keuken
- 12.5 m²
- Tuin
- 434 m²
Energieprestaties
- EPC categorie

- EPC
- 240 kWh/m²
- EPC referentie
- 20250620-0003536112-RES-2
Stedenbouwkundige Informatie
- Overstromingsgevoelig
- Mogelijk
- Elektriciteitskeuring beschikbaar
- Ja, niet conform
- Bouwvergunning
- Ja
- Voorkooprecht
- Nee
- Verkavelingsvergunning
- Ja
- Bodemattest
- Ja
- G-score
- D

- P-score
- D

















