Een bezichtiging inplannen?
Beschrijving
Ontdek deze statige en bijzonder ruime burgerwoning aan de rand van Brugge. Een unieke woning vol karakter en authentieke charme. De klassieke houten vloeren, hoge plafonds, een ingebouwde speksteenkachel en klassieke houten trap ademen geschiedenis en geven het pand een warme uitstraling vol geschiedenis.
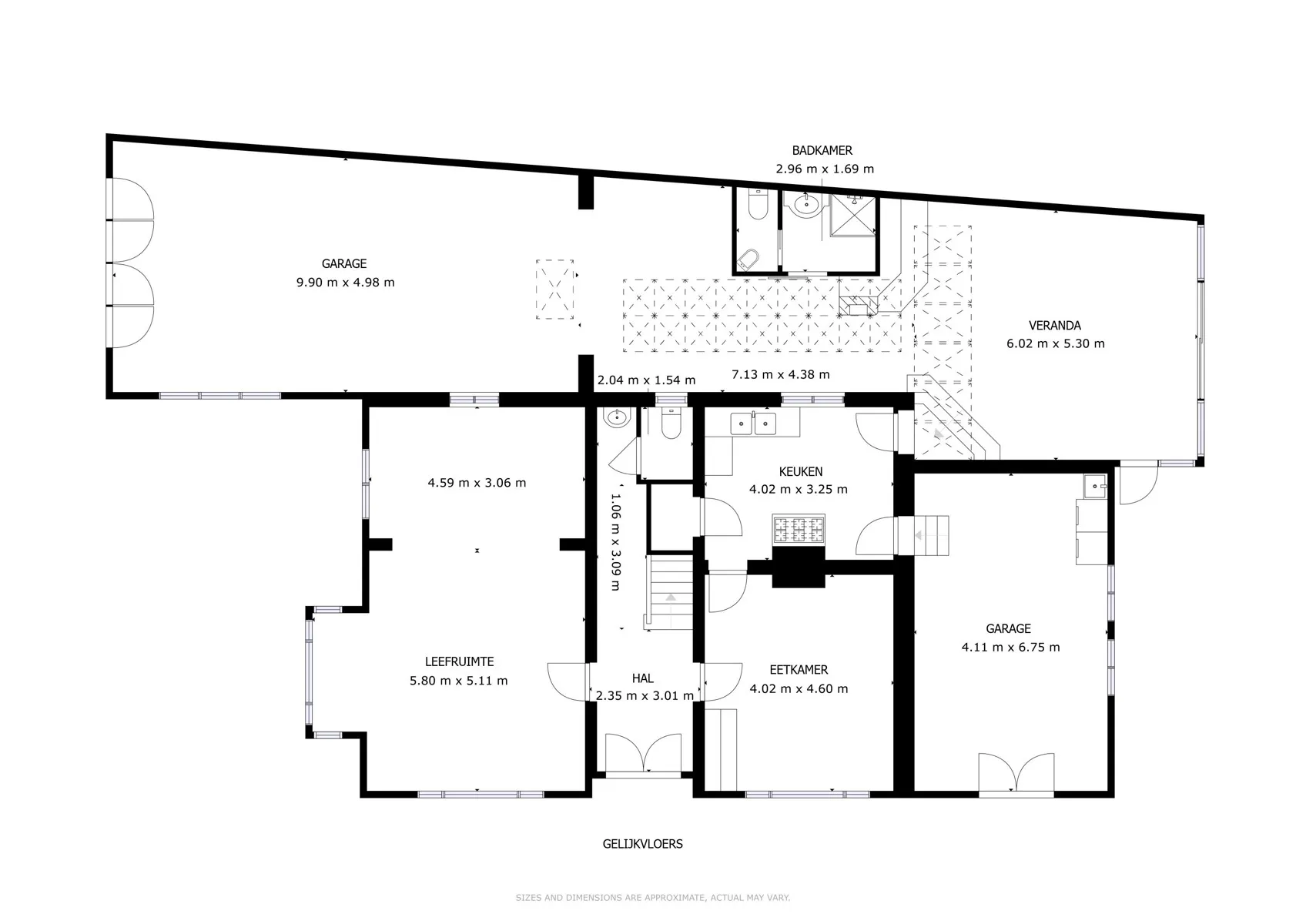
Met vier volwaardige slaapkamers, een aparte bureauruimte, twee badkamers en een royale leefruimte biedt deze woning alle ruimte voor wie op zoek is naar comfort en veelzijdigheid. Daarnaast beschikt de woning een praktische tuin.
Met twee grote inpandige garages, waarvan voor één de benaming magazijn beter past, beschikt deze eigendom over parkeerplaats voor meerdere wagens of extra stockage mogelijkheden, alsook in de kelder of op de ruime zolder.
Hoewel de woning renovatie vereist (EPC-label F), vormt dit een unieke kans om deze karaktervolle villa naar eigen smaak en moderne standaarden te transformeren. De elektriciteit is niet conform en het asbestattest wijst op de aanwezigheid van asbest — maar met de juiste ingrepen bouwt u hier aan een toekomstgerichte thuis met een ziel en veel karakter.
Alle relevante documenten, waaronder het elektriciteitsverslag, asbestattest en EPC, zijn te downloaden via de website van Altro Vastgoed.
Bent u op zoek naar een ruime, charmante woning met potentieel op een bereikbare locatie in Brugge? Dan is dit het ideale renovatieproject voor u.
Met vier volwaardige slaapkamers, een aparte bureauruimte, twee badkamers en een royale leefruimte biedt deze woning alle ruimte voor wie op zoek is naar comfort en veelzijdigheid. Daarnaast beschikt de woning een praktische tuin.
Met twee grote inpandige garages, waarvan voor één de benaming magazijn beter past, beschikt deze eigendom over parkeerplaats voor meerdere wagens of extra stockage mogelijkheden, alsook in de kelder of op de ruime zolder.
Hoewel de woning renovatie vereist (EPC-label F), vormt dit een unieke kans om deze karaktervolle villa naar eigen smaak en moderne standaarden te transformeren. De elektriciteit is niet conform en het asbestattest wijst op de aanwezigheid van asbest — maar met de juiste ingrepen bouwt u hier aan een toekomstgerichte thuis met een ziel en veel karakter.
Alle relevante documenten, waaronder het elektriciteitsverslag, asbestattest en EPC, zijn te downloaden via de website van Altro Vastgoed.
Bent u op zoek naar een ruime, charmante woning met potentieel op een bereikbare locatie in Brugge? Dan is dit het ideale renovatieproject voor u.
Documenten
Wim Gevaert
GSM
+32473704071
E-mail
wim@altro-vastgoed.be
Heb je interesse in deze woning?
Neem contact met ons op voor een bezichtiging of meer informatie.
Wim Gevaert
GSM
+32473704071
E-mail
wim@altro-vastgoed.be
Meer info aanvragen
Wim Gevaert
GSM
+32473704071
E-mail
wim@altro-vastgoed.be
Meer panden
Je bent op zoek naar jouw droomwoning?
Op zoek naar je droomwoning, een kantoorruimte of een bouwgrond op een toplocatie? Dit is niet altijd even makkelijk.
Daarom gaat Altro voor jou aan de slag. Deel je wensen en voorkeuren, en wij zoeken gericht mee naar vastgoed dat écht bij je past.